что такое кухни Метод ИКЕА и в чем их отличие от других
Название выбрано неспроста. Признайтесь, что вам больше всего не хватает в типовых кухонных гарнитурах? Разнообразия дизайна? Универсальной конструкции, которая впишется в любую комнату? А может, возможности дополнить существующую кухню новыми шкафами и полками?
Спешим вас порадовать — в серии МЕТОД ИКЕА все это есть (подробности — чуть ниже). Методичное исполнение невероятных желаний дизайнеров и всех запросов практичных покупателей — теперь это не просто слова!
Чтобы привлечь внимание покупателей к новой линии кухонной мебели, ИКЕА организовала целую «кухнотеку» — выставочный павильон в Москве, работающий с 1 до 12 апреля 2015. Там все желающие могут рассмотреть и испробовать новую серию в так называемой мультикухонной квартире
Кстати, в эти же дни можно не только посмотреть и пощупать мебель, но и забронировать один из залов для романтического ужина или семейного торжества. Почти как ресторан — с той лишь разницей, что готовить вы сможете сами. Уже это говорит об уникальности систем МЕТОД — ведь такого тест-драйва вам не устроит ни одна кухонная фабрика.
Итак, чем МЕТОД отличается от обычных кухонных шкафов и от прежней системы ФАКТУМ ?
В первую очередь — потрясающей мобильностью. В основу конструкции заложен модульный принцип, как в детском конструкторе: соединяй что хочешь и как хочешь. Этакий «Лего» для креативных взрослых.
Новая кухонная мебель ИКЕА — это множество всевозможных размеров по ширине (20, 40, 60, 80 см), соответствующие мировым стандартам и 2 варианта по высоте — для напольных шкафов.
Благодаря этому МЕТОД решает те задачи, которые казались невозможными. Кухня в мансарде или под лестницей? Не проблема — займите шкафами все пространство до потолка, и места для хранения станет в разы больше.
Все шкафы превосходно комбинируются в единый ансамбль. Это касается и подвесных, и напольных шкафов — разная высота позволяет создавать многоуровневые рабочие поверхности. В том числе — благодаря ножкам разной высоты. Особенно актуально для тех, кто готовит не один. Или для тех, кто хочет использовать пространство по максимуму.
ИКЕА поддерживает и актуальный ныне тренд — совмещение кухни с другими комнатами. И в серии МЕТОД есть немало универсальных шкафов, которые подойдут для любой комнаты. Кухня-столовая, кухня-гостиная, и даже кухня-прихожая (для владельцев самых крохотных квартир) — теперь все это легко сделать.
Два цвета корпусов шкафов — белый и черно-коричневый (специально для тех, кто не любит «стерильные» кухни»). А это значит, что такие шкафы придутся к месту в любом интерьере, в том числе — объединенными с другими комнатами. И при этом не надо будет дополнительно приобретать накладные панели! Впрочем, если вы хотите разнообразия цветовой гаммы — накладные панели есть и в этой системе.
А еще МЕТОД невероятно прост в сборке. В отличие от кухонь ФАКТУМ, здесь управится даже один человек без специальных навыков, ведь в комплект входит специальная настенная планка, на которую и вешаются шкафы. Теперь вы сэкономите не только на заказной мебели, но и на сборке.
И, кроме того, любителям ярких цветов понравится новинка в кухонной мебели — открытые модули с цветными вставками. Подробнее об этом — чуть ниже.
А еще икеевские дизайнеры позаботились о дополнительной подсветке своих новых кухонь. Осветить верх или низ подвесных шкафов, подсветка полочек за стеклянными дверцами или выдвижных ящиков — все это сегодня сделать намного проще, чем раньше.
Что касается кухонь ФАКТУМ — они уже сняты с продаж, но в течение 6 месяцев с момента старта МЕТОД (до 1.10.2015) их элементы можно будет заказать (при наличии на складах). Стандартная гарантия 25 лет распространяется на обе системы.
Пару слов о фасадах (дверцах). Практически все старые варианты дизайна есть и в новой системе. Но появились и новинки, аналога которых еще не было.
Как можно использовать кухонные системы МЕТОД на практике? Вариантов — множество, а мы покажем здесь самые интересные. Названия далее — по икеевскому наименованию дверей (=фасадов кухонь).
__________________________
2 икеевские кухни Метод с глянцевыми дверцами
БРОКХУЛЬТ + РИНГУЛЬТ.
А эта кухня понравится фанатам стиля эко. Светлые фасады БРОКХУЛЬТ под грецкий орех превосходно сочетаются с белоснежными столешницами и глянцевыми дверцами верхних шкафов РИНГУЛЬТ, образуя мягкий и в то же время свежий ансамбль.
В дополнение — белые открытые полки. Кухонная техника скрыта за такими же фасадами, что придает кухне единый стиль.
__________________________
РИНГУЛЬТ + ГЭРРЕСТАД.
В предыдущем варианте вы увидели белый глянец. А теперь покажем красный.
Ярко-красные глянцевые фасады РИНГУЛЬТ создают праздничное настроение. А геометрический орнамент на дверцах ГЭРРЕСТАД (новинка, аналога которой еще не было у ИКЕА) вносит неожиданный акцент и создает превосходный контраст.
В итоге получается замечательная кухня, которая понравится любителям современного стиля, в том числе — благодаря эффектным длинным ручкам.
__________________________
Планировщик кухни Икеа онлайн: обзор особенностей
Компания Икеа предлагает трехмерный планировщик, который позволит создать свою идею с расстановкой мебели: программа ориентирована на использование материалов от фирмы Икеа. Здесь есть возможность спланировать помещение в 3d, а затем распечатать готовый чертеж с размерами или список товаров, которые были использованы при планировании.
После окончания планировки программа может рассчитать стоимость готовой кухни, заказанной в Икеа по собственным размерам. Перед тем, как начать использовать калькулятор кухни онлайн, необходимо зарегистрироваться. Нужно записать свой логин и пароль, чтобы консультант смог лучше понять готовый проект и потребности клиента.
Ограниченные размеры

Теперь, когда вы знаете, что вас ждет, и готовы работать самостоятельно, пришло время познакомиться с размерами мебели, чтобы подготовить дизайн кухни IKEA. Здесь очень помогает программа планировщика и дизайна кухни, которая позволяет вам свободно планировать и оценивать нашу кухню.
Однако это всего лишь инструмент. Вы даже можете сделать хороший проект с помощью листа бумаги и карандаша. Как мы уже говорили, вы можете воспользоваться помощью консультанта ИКЕА, но даже он не преодолеет ограничения, связанные с размерами мебели.
Размеры кухонных шкафов ИКЕА

В случае кухонь ИКЕА у нас есть только несколько готовых размеров шкафов и, что является самым большим недостатком, у нас нет навесного шкафа шириной 45 см, который соответствовал бы ширине узкой посудомоечной машины. Это вызывает значительные трудности в дизайне кухни, потому что нижняя мебель не будет соответствовать верхней мебели.

Более того, меньший диапазон размеров — еще одно препятствие, которое особенно ощутят люди, планирующие маленькие кухни, в которых борьба ведется за каждый сантиметр. При таких интерьерах очень остро стоит отсутствие промежуточных или нестандартных размеров.
Простые изменения означают отсутствие гарантии
Здесь также отсутствует тесное сотрудничество между дизайнером и редактором. Некоторые идеи осуществимы, но требуют внесения изменений самостоятельно. Конечно, доработка шкафа влечет за собой потерю гарантии, но часто это жертва, благодаря которой вы можете выиграть.
Не говоря уже о том, что вы теряете гарантию, даже когда делаете решения, обычно используемые в нестандартной мебели, например, более мелкие шкафы. Но как мы уже говорили в первом пункте — ИКЕА — это магазин самообслуживания с готовой мебелью. Этот момент чувствуется на каждом этапе реализации.

Одним словом, если у вас нетипичный интерьер, использование только стандартных решений без внесения ваших модификаций может привести к необходимости использовать слишком много компромиссных решений, которые никогда не будут соответствовать самым важным потребностям.
Выбор техники на кухню
Для компактного помещения удачным решением станет установка встроенной или многофункциональной техники.
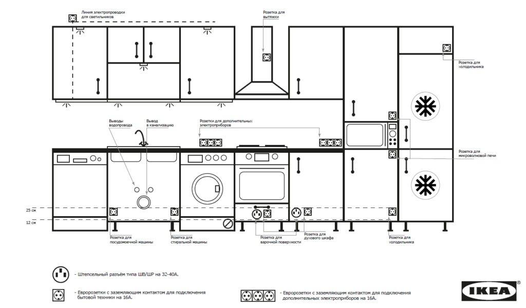
Расположение плиты
В домах старой планировки место плиты четко определено расположением газовых труб. Встроенную варочную поверхность можно несколько сместить, а вот в новых домах хозяева могут индивидуально спланировать месторасположение плиты.
Установка холодильника
При выборе месторасположения агрегата придерживаются нескольких правил:
- не ставят вблизи газовой плиты, отопительных приборов, мойки;
- размещение – недалеко от розетки;
- пол должен быть ровным.
Отлично, если в кухне есть ниша подходящего размера, но чаще всего холодильник устанавливают в углу.
Кухня в белых тонах
Черно-белая мебель в кухне
Кухня 7 кв м с барной стойкой
Выбор места для раковины
Рабочую треугольную зону образуют мойка, плита и холодильник. Классическим считается вариант, когда раковину устанавливают между холодильником и варочной поверхностью. Причем расстояние между предметами должно быть не меньше 50-60 см.
Серии популярных кухонь
- Кноксульт. Лаконичные модули с 1-3 секциями. Имеются фасады, подходящие для прованса, скандинавского направления и модерна. Три расцветки: белый, древесный и светло-серый. Регулируемые ножки и петли.
- Суннерста. Мини-кухня с открытой системой хранения. Содержит столешницу, установленную на металлический каркас с рейлингами. Подходит для крошечных кухонь. В столешницу может быть врезана небольшая мойка и варочная поверхность домино. Отлично смотрится в стиле лофт и хай-тек.
- Овербу. Лаконичная форма. Гладкие фасады. Цвет белый. Модулей немного, однако, собрать недорогую кухню все же можно.
Альбру. Бюджетный вариант. Коллекция более разнообразна, нежели предыдущая. Цвет светло-зеленый.
Бубдин. Подойдет для типичного скандинавского интерьера. Большое разнообразие фасадов.
Вединге и Вокстроп. Яркие и стильные модели, подходящие для модерна и минимализма.
Даларна. Прованс с большим выбором цвета и фактуры.
Бюджетные решения от ИКЕА – это уют и комфорт вашего дома. Придерживайтесь единого стиля, и ваша кухня будет всегда выглядеть идеально.
Ноя 7, 2016
Отделка кухни и материалы
При выборе материалов для отделки предпочтение отдается практичности, но не в ущерб дизайну помещения.
Люстра в восточном стиле на кухне
Кухня 7 кв м венге
Кухня 7 кв м со столом в стиле лофт
Стены
С отделкой стен можно интересно экспериментировать. Рабочую зону оформляют керамической плиткой, а в обеденном месте стены декорируют обоями или штукатуркой. Акцент стоит делать на чем-то одном. При ярком фартуке остальные поверхности должны быть однотонными. Также можно украсить участок стены возле стола фотообоями или полотнами с красивым орнаментом.
Потолок
Если помещение маленькое, но с высоким потолком, то можно установить натяжную конструкцию. Это отличный способ скрыть проводку при установке встроенных светильников.
Кухня 7 кв м светлая
Кухня 7 кв м в стиле кантри
Две люстры и точечные светильники на кухне
Пол
Оптимальный вариант для кухни – керамическая плитка. Это долговечный и практичный материал, за которым несложно ухаживать. Линолеум также не создаст проблем с уборкой и отлично подойдет для прованского интерьера.
Специфика и особенности
Всю мебель от ИКЕА делают в минималистичном скандинавском стиле. Дизайн всегда лаконичный, фасады короткие, а функциональность максимальная. Выбирая материалы для фасадов, производитель обычно выбирает более экономичные варианты.

Оформление рабочего фартукаИсточник vashakuhnya.com

Идея оформления большой кухниИсточник topdizz.com
В качестве основы в IKEA обычно используют массив берёзы, ДСП или МДФ, их отделывают шпоном дуба или берёзы, дополнительно активно используются лаки, морилки и полиэфирные краски. Всё, что используется на производстве, имеет сертификаты об экологической безопасности.

Идея обновления кухниИсточник www.pinterest.com
Все фасады в IKEA делают по безрамочной методике, используя высокопрочный МДФ либо ДСП. Специальные дюбели и винты дают возможность закрепить не менее надёжно, чем с рамкой. Это ещё одно проявление скандинавской политики: используем меньше ресурсов, получаем лучший результат. Такая экономия продиктована не жадностью и жаждой сэкономить, а бережным отношением к природе и её ресурсам.
Панель МДФ снаружи покрывается высокопрочной ламинирующей плёнкой. Для ящиков IKEA используют прочные крепления и направляющие. У всех напольных модулей прочные пластиковые ножки, которые выдерживают до 120 кг: так, в целом технически стол или тумба может вынести почти полтонны.

Простой гарнитур под деревоИсточник www.infostroyadvice.ru

Глянцевые поверхностиИсточник www.infostroyadvice.ru
Стоит учитывать, что ширина почти всех кухонных модулей в ИКЕА – 60 сантиметров
Ориентируясь при выборе, важно обращать на это внимание
Отделка кухни 7 кв. м.
Выбирая отделочные материалы, нужно учитывать много характеристик. Например, необходимо использовать в кухни влагостойкие, хорошо чистящиеся поверхности.
Пол
Виды материалов, применяемых для полов:
- Лучшим вариантом для полового покрытия маленькой кухни является керамическая плитка, которая обладает рядом преимуществ: долговечная, недорогая, легко чиститься.
- Если хотите, чтобы пол выглядел более презентабельно, можно использовать искусственный аналог гранита – керамогранит.
- Уместно будет смотреться ленолеум.
- Пол с дерева, покрытый лаком, является долговечным, но не функциональным. В некоторых случаях лучше отдать свое предпочтение ламинату.
Потолок
В основном потолок в маленькой кухне красят в светлый, однотонный цвет. Если позволяет высота, можно установить натяжные потолки или гипсокартонные конструкции.
Стены
Для зоны фартука с материалов обычно выбирают небольшого размера керамическую плитку. Для стен используют однотонную покраску или оклейку флизелиновыми обоями.
Мебель
Для обстановки маленькой кухни хорошо подойдет мебель стандартных размеров с небольшим количеством предметов. Так как мелкие детали будут создавать эффект нагромождения, а помещение будет казаться еще меньше.
Обеденный стол нужно подобрать откидной или небольшого размера. Стулья лучше выбрать легкие и простых форм. В кухне 7 кв. метров можно поставить мини-диван с откидным сиденьем, что послужит дополнительным местом для хранения.
Освещение
Злыми врагами маленьких кухонь являются полумрак и тьма, которые зрительно «съедают» пространство. Поэтому нужно максимально наполнить помещение как искусственным, так и естественным светом.
В интерьере кухни 7 кв. метров помогут справиться с данной задачей полупрозрачные шторы, глянцевые светоотражающие фасады, хромированная фурнитура, зеркала.
Для искусственного освещения хорошо подойдет как центральная небольшая люстра, так и точечные светильники. Рекомендуют также установить светодиодное освещение над рабочей поверхностью.
Декор и аксессуары
Перенасыщения декоративными элементами в маленькой кухне не должно быть, так как можно получить эффект сдавленности и нагромождения.
В интерьере пастельных оттенков хорошо будет смотреться яркий декор: ваза с цветами, картина, настенные часы. Колоритное помещение можно украсить практичными деталями: изящные статуэтки, белый столовый сервиз, текстиль.
Даже маленькую кухню можно сделать уютной, со стильным дизайном. Для этого потребуется фантазия, усердие и вдохновение!
https://youtube.com/watch?v=rr1juzkgglg
Ключевые особенности скандинавского стиля
Скандинавы не стремятся к роскоши в интерьере, предпочитая комфорт и простоту. Термин «хюгге» описывает их размеренный ритм жизни – без спешки и суеты. Те же правила действуют и в оформлении дома или офиса. Скандинавский стиль в интерьере – это мягкость, комфорт, уют и теплота. Здесь нет лишних нагромождений или ненужных кладовок.
Деревянные полы, белые стены и отсутствие громоздких предметов мебели – основные характеристики интерьера, выдержанного в скандинавском стиле. Отсылки к природе обуславливают преобладание лаконичных форм, абстракций и натуральных элементов. Зародившись в 1950-х, северный стиль продолжает эволюционировать, оставаясь одним из актуальных векторов дизайна в 2021 году. Это направление характеризуется акцентом на простоте и функциональности.
Сочетание цветов в скандинавском стиле
Интерьер в скандинавском стиле невозможен без белого цвета. Он используется в отделке стен и потолков, преобладает в предметах декора и мебели. Чтобы дополнить эту белоснежную гамму и избежать аскетичности, ее разбавляют точечными цветными акцентами. Добавляются бежевые элементы, вкрапления глубоких синих, пастельных серых и контрастных черных оттенков.
Если же хочется внести в нейтральный интерьер необычные краски, дизайнеры рекомендуют обратить внимание на яркую и насыщенную палитру
Для поддержания общего стиля, важно соблюдать меру и избегать многоцветности. Небольшие декоративные элементы или предметы мебели желтого, изумрудного или цвета индиго могут стать яркими акцентами в монотонно-белом помещении
Малиновый плед или ультрамариновое кресло, бирюзовые шторы или насыщенно-фиолетовый текстиль – все это изысканно дополнит классическую для северного стиля белую гамму
Малиновый плед или ультрамариновое кресло, бирюзовые шторы или насыщенно-фиолетовый текстиль – все это изысканно дополнит классическую для северного стиля белую гамму
Небольшие декоративные элементы или предметы мебели желтого, изумрудного или цвета индиго могут стать яркими акцентами в монотонно-белом помещении. Малиновый плед или ультрамариновое кресло, бирюзовые шторы или насыщенно-фиолетовый текстиль – все это изысканно дополнит классическую для северного стиля белую гамму.
Фактурные стены и деревянные полы – важные элементы нордического стиля
Оформлению стен придается все большее значение. Сегодня они – не просто фон. Отделка стен выходит на передний план, выступая самостоятельным элементом дизайна помещения. Рекомендуется отдавать предпочтение фактурным покрытиям, делающим поверхность не только интересной, но и тактильно приятной. Чаще всего в качестве отделки используется матовая декоративная штукатурка с шероховатым эффектом или микро-цемент. Цветовая палитра варьируется от белого до кремового и приглушенного серого.
Скандинавский стиль предполагает большое количество света и свободного пространства. Чтобы поддержать эту тенденцию, в качестве напольного покрытия лучше выбирать натуральное дерево. Чаще всего используются светлые породы – ясень или дуб. Их оттенки удачно подчеркнут минимализм и сдержанность интерьера.
Натяжные многоярусные потолки и лепнина неуместны в скандинавском интерьере. Правильнее всего оставить ровный потолок белым, без дополнительных декоративных элементов. Единственный вариант, стилистически подходящий для нордического стиля – массивные деревянные балки или дощатые панели.
В скандинавском интерьере двери заменяются сквозными проемами. Их делают достаточно широкими для свободного прохождения света. Если же устанавливается дверь, она подбирается в тон стены.
Ключ к гармоничной концепции – природные материалы
Особенности северного климата повлияли на характерные для стиля материалы. Главное требование при их подборе – натуральность. Именно она наполняет интерьер теплотой, нордическим шармом и уютом.
Крупные элементы из природного камня, керамогранит, обилие древесины, кожа и мех, стекло, хлопок и лен – вот базовые материалы, традиционные для скандинавского стиля. Экологичность – главный аспект в типичном скандинавском интерьере.
4 тура по кухням Метод ИКЕА с использованием белых матовых дверей
Экономичные белые матовые фасады (в новых кухнях ИКЕА они называются ВЕДДИНГЕ) прекрасно комбинируются с другими дверцами. В чем вы сейчас убедитесь на примерах разных кухонь.
ВЕДДИНГЕ + ФЛЭДИ + ТУТЕМО.
Белоснежные матовые фасады ВЕДИНГЕ создают идеальную основу для чего-то яркого. А зеленые дверцы ФЛЭДИ и открытые цветные модули ТУТЕМО — отличный фон для любимых мелочей. Гибкая конструкция шкафов позволила разместить их над лестницей, а яркие цвета сделали эту кухню подлинным бриллиантом дома.
__________________________
ФЛЭДИ.
На первый взгляд — самая простая кухня. Но посмотрите, как ее освежают красочные зеленые фасады ФЛЭДИ! Часть шкафов поставили на ножки — так они выглядят более легкими и современными. Кухня хороша не только внешне, но и внутри — каждый шкаф и ящик оборудован удобными полочками и разделителями.
__________________________
ХИТТАН + ВЕДДИНГЕ.
А здесь кухня и вовсе в необычном месте — под лестницей. Кухонные шкафы и фасады разных размеров превосходно вписались в эту импровизированную кладовку. Каркас шкафа совместили со столешницей, и получился компактный кухонный островок. А фасады ХИТТАН с текстурой дерева — идеальное сочетаются со всей остальной мебелью в комнате и белыми дверцами ВЕДДИНГЕ.
__________________________
БРОКХУЛЬТ + ТИНГСРИД + БЬЕРКЕТ + ВЕДДИНГЕ.
Еще одна комбинация МЕТОД, позволяющая увидеть разнообразие вариантов для белых матовых фасадов — они легко сочетаются с чем угодно. В том числе — сразу с тремя (!) вариантами иного дизайна дверей.
Обратите внимание: здесь есть скосы потолка, которые в типовой кухне стали бы бесполезными пылесборниками. Но не в кухне МЕТОД! Здесь каждый квадратный сантиметр стены использован по максимуму
Полки-дисплеи МЕТОД и ХОРДА для любимой посуды, модули с текстурированными дверцами (ТИНГСРИД — темно-коричневый, БРОКХУЛЬТ — серо-коричневый под грецкий орех, БЬЕРКЕТ — береза), узкий боковой стеллаж — и все это идеально вписывается в скосы.
__________________________
Перепланировка и зонирование
Кардинально изменить 4-метровую кухоньку можно путем перепланировки, объединив ее с гостиной/коридором/лоджией или, переставив стену, увеличить площадь за счет смежного помещения.
Совмещение кухни с гостиной выгодно возможностью переноса обеденной зоны в зону отдыха или на границу между двумя комнатами. Таким образом, появляется шанс обустроить более вместительное рабочее пространство, да и стол в этом случае можно выбрать побольше. А еще объединенная кухня-гостиная создает отличные условия для семейного общения и проведения домашних праздников. Правда, решаясь на такую перепланировку, будьте готовы и к неудобствам – беспрепятственному проникновению запахов и шумов из комнаты в комнату, отсутствию возможности уединения. Ниже на фото представлен пример кухни в хрущевке площадью 4,8 кв. м, объединенной с гостиной.
Кухня в однокомнатной в хрущевке, переделанной в квартиру-студию
План квартиры до и после ремонта
Увеличение кухни за счет смежных помещений путем переноса перегородки – оптимальное решение, когда изолированность комнат нужна и важна.
Какой кухонный гарнитур подойдет?
- Прямой. Его преимущество — компактность, останется место для большого дивана с телевизором. В квадратной комнате размещают на любой стене, в вытянутой и узкой — на короткой. Подойдет для тех, кому не требуется много места для хранения и готовки.
- Угловой. Оптимальный вариант, в котором легко выстроить рабочий треугольник. Интересно смотрится если одна из сторон расположена вдоль окна — столешницу на подоконнике используют в качестве рабочего или обеденного стола.
- П-образный. Подходит для параллельной планировки кухни. Наиболее вместительный, удобен если готовят 2-3 человека. Обеденную зону в данном случае делают небольшой, часто — встроенной в гарнитур.
Если вы не хотите потерять ни одного сантиметра, закажите встраиваемую кухню по индивидуальным размерам. Специалисты предложат максимально эргономичный вариант, подходящий именно вам.

На фото п-образный гарнитур с нишей для холодильника


Подбираем стиль
Существует много вариантов стилей для кухонь. Стоит рассказать о каждом.
Современный стиль кухонь ИКЕА. Практичный, минималистический и лаконичный. Обычно здесь гладкие глянцевые или матовые поверхности. Можно комбинировать версии оформления: верхний ярус без фурнитуры, а снизу – ручки с дверцами. Если оставить одинаковый цвет и фактуру для каждого предмета мебели, получится прекрасное современное сочетание. Минимализм – отличное решение для модного дизайна IKEA.

Увеличиваем пространство: белая кухняИсточник topdizz.com

Образец в магазинеИсточник www.pinterest.com

Домашний стиль оформленияИсточник kuhnya.guru
В списке современных – Брокхульт, Веддинге, Рингульт, Ерста, Гревста, Фледи, Экестад, Тингсрид и Росдаль.
Классический стиль ИКЕА – традиционные и изящные фасады. Они лаконичны, выглядят очень строго и просто, и это настоящая неоклассика. С современным трендом на минимализм такой дизайн будет смотреться современно.
К классике относятся Будбин, Хитарп, Сэведаль, Эдсерун, Ютис, Филипстад.
Прованс – лёгкий, нежный и тёплый стиль. Он пришёл к нам из Франции, и название произошло от названия провинции в этой стране. Основные его отличительные признаки – лёгкие текстуры, воздушный вид.
Привести к этому стилю мебель IKEA несложно при помощи небольших деталей интерьера. Кухонь, разработанных специально в этом стиле, нет, но универсальные классические кухни IKEA вполне подойдут.

Верхние шкафчики лимонного цветаИсточник designmyhome.ru

Сочетание цветовИсточник designadvice.ru
Размещение холодильника
Отдельной проблемой на маленькой кухне является размещение холодильника, так как он занимает достаточно большое пространство. Не рекомендуется на такой кухне устанавливать холодильник типа “Side by Side”. Это связано с его увеличенными габаритами. Пользоваться такой техникой на маленькой кухне будет неудобно, и в интерьер его вписать будет совсем непросто.
Отличным вариантом для кухни небольшого размера является прибор с зеркальным покрытием дверей. Он не только станет акцентом на кухне, выполненной в современном дизайне, но и поможет визуально расширить помещение.
Если мебель в помещении имеет г-образную установку, то холодильник устанавливают в начале или в конце гарнитура. Если на кухне имеется ниша с подходящими размерами, то самое подходящее – разместить прибор там.
В этом случае холодильник может оказаться около окна, тогда стекло стоит затенить жалюзи или рулонной шторой, чтобы избежать ненужного нагрева прибора. При установке холодильника в углу стоит отдавать предпочтение малогабаритным моделям с небольшой глубиной. Самые узкие приборы обычно имеют данный параметр, равный 54 см. Это поможет более лаконично вписать данную технику в интерьер.
В кухне, объединенной с балконом, отличным вариантом будет разместить холодильник на лоджии. Там образуется очень удобная ниша между окном и боковой стеной балкона.
Но такая установка прибора может привести к отказу от двери в данном помещении. Если вы готовы с этим мириться, то при возможности стоит расширить дверной проем. Это визуально уменьшит размеры холодильника, который будет размещаться рядом с ним.
Если кухня проходная и имеется два выхода на примыкающих друг к другу стенах, то в образовавшемся углу холодильник будет смотреться довольно уместно.
Цветовая гамма
7 кв м — довольно мало, а значит помещение необходимо расширять. Лучше всего с этим справятся светлые оттенки. С белой, бежевой, серой гаммой станет просторнее.
Визуально увеличить кухню 7 кв можно также с помощью пастельных тонов. Светлые голубые, зеленые, желтые, розовые, персиковые тона задают настроение и делают квартиру уютной. Особенно хорошо в этой гамме смотрится прованс или кантри с деревом.
Если в качестве основной гаммы вы выбрали нейтральную светлую, добавьте к стилю акценты. Вы можете позволить себе выделить одну из стен, оформить яркий фартук или поставить холодильник неожиданного оттенка.
На фото монохромное оформление маленькой кухни 7 кв




































