Оформление ниши в стене — фото идеи и секреты безупречного декорирования в интерьере
Одним из самых интересных и функциональных элементов дизайна является ниша в стене. Прочитав данную статью, вы узнаете, как же правильно сделать оформление декоративной ниши в стене, чтобы интерьер выглядел не перегруженным и органичным.
История появления ниш в дизайне квартир
Идея оформления ниш в стене была взята с такого стиля как рустикальный. Также ниши можно встретить в таком стиле как кантри, но нужно отметить, что ниши в этой стилистике не выполняли никакой функциональной нагрузки. Их главная задача – делать комнату уютнее и комфортнее.
Именно в классическом стиле ниши в стене чаще всего используются. Зачастую, это закругленное и выделенное белым цветом декоративное углубление в стене.
Если говорить об оформлении ниш в классическом стиле, то зачастую такие углубление декорируются при помощи статуэткой или же вазой с цветами. Самое главное – не перегружать пространство лишними деталями, это все-таки классика.
Если речь идет о ретро стилистике, то ниши декорируются при помощи картин, коллажей семейных фотографий.
Ниши в стене и современный дизайн
В модерне можно максимально экспериментировать с формами, цветами и общим оформлением ниш в квартире. Их можно подсвечивать, всячески выделять, ставить стекло, делать самые разные, ассиметричные формы. Чаще всего ниши используются в спальнях в японском стиле.
Какими функциями обладают ниши в стене
Во-первых, их можно использовать как полочки. Это самое распространенное и функциональное применение.
Во-вторых, ниши часто подсвечиваются, поэтому они могут использоваться как дополнительный источник света.
В-третьих, если ниша очень глубокая, то туда можно спокойно поставить телевизор.
Однако, лучше всего не загромождать маленькие ниши, не использовать их вместо стеллажа или шкафа. В противном случае, интерьер будет перегруженным и тяжелым.
Как лучше всего расположить нишу в стене?
Если вы хотите сделать интерьер более интересным и оригинальным, то можно смело использовать асимметрию в оформлении и размещении ниш. Кроме того, можно использовать разные варианты рамок и подсветок. Чтобы понять подойдет ли вам такой вариант можно просто-напросто посмотреть фото оформления ниши в стене.
Чтобы придать комнате некой организованности и геометрии можно использовать две совершенно одинаковых и симметрично размещенных ниши. Также внутреннюю поверхность можно выделить каким-то цветом, примеров: кремовым, белым или же нежно-розовым, такой ход поможет правильно сделать акцент на нише.
Еще один вариант расположения ниши – это одно большое углубление, которое асимметрично делиться на несколько полочек поменьше. Такую нишу можно использовать как полочку, где можно хранить разные милые вещи.
Что нужно учитывать при планировании ниш в стене?
В первую очередь, планируя нишу, нужно обратить внимание на то, что она должна гармонировать с мебелью и дополнять её. Самым оптимальным вариантом является расположение ниш у изголовья кровати, а вот по бокам кровати ниши лучше не делать, так как из-за них нельзя будет поставить тумбочки впритык к стене
Ниша – это прекрасный вариант заполнить пустые стены, при правильной планировке и оформлении ниша может стать одним из главных декоративных элементов в дизайне комнаты.
Далее речь пойдет о важной составляющей оформления ниш в интерьере комнаты, а именно о подсветке
Как правильно подсвечивать ниши в стене?
Самый простой вариант и недорогой вариант придать нише объема и эффектности – это подсветка. Но как цвет, свет должен быть уместен и гармоничен.
Полностью убирать подсветку с ниши лучше не убирать, так как предметы, которые будут находиться на полочках будут хорошо смотреться при рассеянном свете.
Основные советы:
- Во-первых, если на полочках будут стоять какие-то блестящие предметы, то лучше всего использовать точечную подсветку.
- Во-вторых, для всех остальных отлично подойдет более мягкая и рассеянная. Таким образом, все акценты будут расставлены, а общий вид будет очень гармоничным.
Как итог нужно сказать, что ниша — это универсальное решение, которое поможет сделать комнату эффектнее и интереснее. Кроме того, при грамотном оформлении нишу можно вписать в любой стиль начиная от классики, заканчивая модерном.
Финишная отделка
Далее шкаф шпаклюется по стыкам. Для этого сначала используется лента, а затем – качественная шпатлевка. После шкаф из гипсокартона необходимо оставить до полного высыхания шпатлевки.
Следующий этап – покраска шкафа из гипсокартона, оклейка его обоями или закрепление декоративного покрытия. После высыхания краски шкаф почти готов. Осталась только дверь. Тут можно пойти тремя путями. Можно заказать готовую дверь на фабрике, изготовить самостоятельно из металлического профиля или установить на шкаф роллеты.
Шкаф, собранный своими руками, обойдется в два раза дешевле покупки готового изделия. А по прочности и эксплуатационным качествам такой шкаф превосходит любые массовые изделия.
Где допустимо делать?
Подобную нишу можно соорудить в любом помещении
Не важно, предназначено помещение для проживания людей или нет. Понятное дело, что чаще всего ниши делают в квартирах
При этом совершенно не важно, будет ли это ванная комната или помещение, предназначенное для сна.
Организовать нишу может каждый самостоятельно, но если человеку не хватает опыта, то оптимальнее всего будет обратиться к профессионалам. Специалисты помогут оперативно закрыть вопрос создания такой ниши. Этот подход поможет избежать лишних денежных трат, которые возникнут, если при выполнении работ были совершены ошибки.
Возможные варианты конструкции
Для начала стоит понять, а какой вообще шкаф нужен. Существует несколько возможных вариантов:
- линейный. Это самый просто и привычный шкаф, который хорошо впишется везде, где его захотят установить;
- встроенный. Такая конструкция подойдет только в тех случаях, когда в квартире уже имеется ниша, которую нужно заполнить. Причем необходимо, чтобы размеры этой ниши были достаточными для того, чтобы в новом шкафу уместились все вещи. Нередко к такому шагу прибегают, делая ремонт в кладовке;
- шкаф-купе является весьма сложной конструкцией, но зато удастся спрятать все свои вещи с видного места;
- угловой. Создают угловой шкаф из гипсокартона своими руками в тех случаях, когда пространства очень мало. Размещая конструкцию в углу, удается сэкономить пространство, ведь вдоль стены она займет намного больше места.
Для встроенного шкафа всегда нужна ниша для размещения
Мы будем рассматривать создание самого первого варианта, как наиболее простого и не требующего специальных навыков.
Особенности в чертежах и точные расчеты
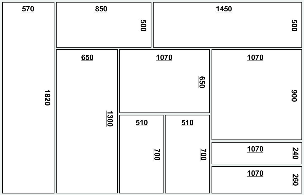
При появлении идеи создать нишу с полками, необходимо определиться какой она будет? Где будет стоять? Зачем она нужна? Когда получены все ответы на эти вопросы, надо заняться проектом, рисунком и чертежом. Для того чтобы спроектировать чертеж, на котором будет основываться весь монтаж, изначально лучше нарисовать рисунок с количеством полок, цветом света, местом установки. Для установки полок, необходимо учитывать в интерьер комнаты.
Итак, для чертежа потребуется: линейка, карандаш, угольник, ластик, метр. Требуется соблюдать точность в расчетах, потому что они будут переноситься на стены. На эскиз надо нанести все цифры: глубину, ширину полки, высоту, расположение полок в нише. Если планируется установить подсветку, следует начертить проводку и места, где планируется осветительный прибор, а также место выключателя.
Схема с размерами ниши с полками из гипсокартонаВ отдельных случаях требуется нанести на чертеж место розетки в гипсокартоне или разъёмы для кабелей. После завершения эскиза следует еще раз всё внимательно проверить, вплоть до мелочей.
Ниша в стене из гипсокартона в интерьере – 100 фото идей
Первым делом на стене стоит разметить, где именно планируется размещение ниши — лучше всего план воспринимается наглядно. После этого делаются замеры, чтобы высчитать все материалы.Теперь всю площадь гипсокартона необходимо зашпаклевать
Особое внимание уделить стыкам — проклеить их перфорированной лентой или сеткой-серпянкой для прочности, и сверху также зашпаклевать
Для этого используется финишная шпаклевка (можно приобрести готовую).Как уже упоминалось выше, довольно часто гипсокартон используется для зонирования помещений. К примеру, одним из наиболее распространенных вариантов сегодня является оформление зон в детской комнате перегородками, которые разделяют ее на две части: одна – для работы и игр, а вторая – для сна. Для того чтобы перегородка не забирала часть освещения между зонами, ее можно выполнить с полками-нишами, в которых будут храниться игрушки, любимые книги ребенка и другие принадлежности
Обращаем внимание на то, что выбирать гипсокартон для оформления помещения необходимо с учетом его эксплуатационных характеристик
К примеру, для гостиной или детской подойдет обыкновенный универсальный состав, а вот для оборудования нишами или перегородками кухни или ванной комнаты вам потребуется влагостойкий гипсокартон. Гипсокартон является абсолютно безвредным для человека, нетоксичным строительным материалом. Он выпускается в виде плит, основой которым служит гипс в облицовке из специального картона. Выпускаемый материал имеет установленные стандартами размеры: ширину 120 см и длину 250-300 см.
Наиболее распространены три вида гипсокартона: арочный, стеновой и материал для оформления потолочной поверхности. Гипсокартон можно разделить и на типы по области его применения: Помимо сокрытия электропроводки, коммуникаций и дефектов стен, ниши в зале успешно выполняют декоративные и дизайнерские функции. Их использование в гостиной – отличное интерьерное решение, вписывающееся практически в любое стилистическое направление от современного хай-тека до классики или минимализма.
Они станут привлекательным и стильным акцентом. Нишами с полками оборудуют небольшие гостиные, которые нежелательно загромождать объемной мебелью. Подобные конструкции применяются для хранения книг, сувениров, размещения фоторамок и прочих мелочей, а при помощи эффектной подсветки можно красиво оттенить все выставленные на них предметы. Оригинально смотрится конструкция с нишами и камином по центру. Грамотно вписанные в интерьер ниши помогут визуально увеличить гостиную: горизонтальные сделают стены более широкими, а вертикальные сделают более высокими потолок, даже если он разноуровневый, что обычно скрадывает высоту.
При этом размер самих ниш необходимо четко просчитывать, ведь если сделать их больше, чем требуется, то ниша сама “съест достаточно значительную часть комнаты. Необходимо заранее продумать вариант освещения, чтобы знать, потребуется ли в нише дополнительный бортик и правильно спроектировать конструкцию. Чтобы так провести зонирование помещения изготавливаются многоуровневые конструкции, граница уровней которой должны определить зоны. Это важный момент.
Должен появиться в интерьере эффект необычности. Очень часто границы между уровнями на потолке украшают и декорируют. Для этого можно использовать встроенные точечные светильники или светодиодную подсветку
Гостиной важно придать не только эстетичный внешний вид, но и сделать ее максимально функциональной
Именно гипсокартонные конструкции помогут сделать интерьер необычным и оригинальным.
Дополнительная информация по теме:
- Утепление стен деревянного дома изнутри минватой плюс гипсокартон видео
- По какой расценке взять прорезку отверстий в гипсокартоне
- Подготовка стен из гипсокартона к покраске водоэмульсионной краской
- Экран под ванну из гипсокартона и плитки съемный фото
- Потолки из гипсокартона для детской фото форме сердца или солнышка
Как создают ниши из гипсокартона
Существует два способа устройства ниш из гипсокартона: на клею и на каркасе из металлических профилей. Если вы собрались использовать для изготовления ниши первым способом, тогда в строительном магазине необходимо купить специальную клеящую смесь для гипсокартона. А вот выбрав второй способ монтажа необходимо соорудить соответствующий каркас из профилей.
Как же сделать нишу из гипсокартона на каркасе из профилей? Для этого необходимо точно определиться с ее размерами и с функциями. Для чего вы собираетесь ее использовать, если в ней будут расположены полки для книг или видеотехники, тогда глубина будет такой же, как предметы, плюс не забудьте добавить пару сантиметров на вентиляцию и размещение проводов. После этого нарисуйте схему расположения ниши.
После того как схема готова, посчитайте сколько и какого материала вам необходимо приобрести: гипсокартоновые листы, профиль, крепеж, уголки и ленты армирующие. Также вам для монтажа потребуется соответствующий инструмент: перфоратор, болгарка, шуруповерт, уровень и отвес.
Теперь следуя схеме, перенесите чертеж на стену, не забудьте учесть и размер профиля, 15 мм, от этой линии вы и буде ориентироваться на установку направляющего профиля.
После этого можете приступить к установке каркаса: отмеряйте нужные отрезки профиля и соединяйте их при помощи саморезов. Крепите их к вертикальным стойкам, которые установлены по углам вашей будущей ниши поперечно. Эти перемычки еще называют контур профилем, он должен быть идеально ровным, проверяйте его ровность только при помощи строительного уровня.
После того как закончите монтаж каркаса приступайте к его обшивке гипсокартоном, его саморезами крепите к стойкам. Стыки выровняйте при помощи армирующей ленты, а по углам установите металлический уголок. После этого нишу хорошо шпаклюют, шлифуют вот и готова ваша ниша, теперь стоит ее только украсить.
Декорировать нишу можно при помощи краски, но не забывайте, что цвет краски стоит подбирать в соответствии с тоном отделки всего помещения или может служить контрастом. В первом случае ниша просто сольется с общим оформлением и вам все равно надо будет каким-либо способом ее выделить. А вот во втором случае гармония светлого и темного оттенка будет выглядеть довольно эффектно. Также можно выделить нишу при помощи другого тона обоев или же наоборот приобрести обои с рисунком, если сами стены оклеены обоями без него.
Как сделать нишу в стене из гипсокартона
Вступление
Нестандартные строительные конструкции все больше набирают популярности в индивидуальном строительстве. Они позволяют домовладельцам создавать уникальные жилища с неповторимым дизайном и оформлением. Ярким примером такого индивидуального подхода в строительстве, стали монолитные железобетонные лестницы в частных домах. Посмотреть, выбрать и заказать бетонные лестницы в Москве и области вы можете на сайте DNK-Spiral.ru, компании DNK-Spiral.
Аналогичный нестандартный подход к отделке обеспечивает гипсокартон. Пластичность гипсокартона позволяет изготавливать самые разнообразные криволинейные поверхности. Очень эффектно смотрится круглая ниша из гипсокартона (экседра). На практике круглая ниша из гипсокартона может удачно обыграть уже имеющуюся прямоугольную нишу в стене. Или круглую нишу, которую можно встроить в новую конструкцию из гипсокартона.
В первом случае вы не можете влиять на параметры ниши, и вам предстоит вписать круглую нишу из гипсокартона в уже готовую конструкцию. Во втором случае вы сами можете спланировать ширину и глубину ниши, чтобы ее криволинейная поверхность выглядела плавной и правильной. Оформить нишу можно различными способами: повесить панно, поставить стильную вазу, какую-нибудь скульптуру, торшер, поместить коллекцию керамики, бабочек и т.п.
Kruglaya nisha 6
Тонкости интерьера: акцентная стена в гостиной
Что же такое акцентная стена в главной комнате дома, для чего ее устраивать в гостиной? Акцентная стена представляет собой участок стены, особым образом выделенный при помощи все возможных дизайнерских приемов. Основное требование при оформлении акцентной стены заключается в том, что она должна полностью совпадать с общим стилем интерьера.
Итак, для чего нужна акцентная стена:
Если оформить такую стену хочется, то надо приготовиться к решению непростой задачи. Подойти к процессу надо грамотно и продуманно. Если отнестись к делу не серьезно, то ошибок избежать не получится. А зачем тратить деньги, время и нервы.
Чтобы не наломать дров опытные дизайнеры рекомендуют при оформлении акцентной стены придерживаться следующих принципов:
- Площадь акцентной стены должна быть меньше общей площади.
- Акцентная стена не обязательно должна быть единичным элементом.
- Выделять стену можно как при помощи ярких цветов, так и при помощи необычной фактуры.
- Следует учитывать психологию цветов.
- Надо правильно выбрать расположение акцентной стены.
- Акцентная стена может выгодно подчеркнуть функциональную зону гостиной.
- Стена должна создавать равновесие в помещении, поэтому надо очень внимательно отнестись к ее устройству.
Вот несколько советов по выбору месторасположения:
- Если это возможно, то лучше располагать стену напротив входа в комнату.
- Располагать ее надо так, чтобы было разделение функциональных зон.
- Акцентная стена может располагаться в месте просмотра ТВ, но в таком случае следует отказаться от слишком ярких цветов.
Для создания акцентной стены могут подойти самые разнообразные материалы.
Сегодня широко применяются:
- Дерево;
- Краска;
- Кирпич;
- Плитка;
- Камень;
- Обои;
- Панели из стекла;
- Штукатурка.
Многие полагают, что достаточно покрыть стену в яркий цвет, и все акцент сделан – это не так. Должна быть создана мини цветовая композиция.
Дизайнеры предлагают запомнить ряд правил:
Перегородка из мебели
В каталогах мебельных компаний представлено огромное количество стеллажей с открытыми полками. Они могут быть двусторонними или односторонними, с ящиками и без.
Самое главное подобрать стеллаж под дизайн гостиной. Если вся мебель будет в едином стиле, такая стенка будет гармонично вписываться в интерьер.
Обратите внимание!
- Тюль для гостиной: 135 фото и видео примеров стильного оформления окон в современном интерьере
- Гостиные IKEA — 165 фото и видео описание реальных вариантов применения идей от ИКЕА для гостиных комнат
Гостиная в хрущевке — 165 фото и видео описание как украсить типовую гостиную в хрущевке
Основные типы материалов
Еще пару десятилетий назад основными материалами для строительства и ремонта были натуральные камни, плиты, дерево и бетон. Однако, как только в широкое использование был введен гипсокартон, то представить его замену стало практически невозможно. Дизайнеры со всего мира смогли воплотить в жизнь те задумки, которые оставались на листе проекта, поскольку материал очень легок в использовании и доступен в цене. Не смотря на ряд стереотипов, гипсокартонные стены достаточно прочны, выдерживают до 30 кг веса.
Гипсокартонные плиты переносят жару, холод, долговечны. На них легко можно использовать различные смеси клея для обоев. Поверхность идеально гладкая, поэтому не имеет значение будет она покрашена или обклеена обоями, изменять поверхность не составит труда.
Еще одним, немаловажным моментом является монтаж гипсокартонных конструкций. Для того чтобы изменить интерьер не обязательно прибегать к помощи мастеров. Для установки не требуется большого арсенала специальных, дорогостоящих инструментов. Пара статей в интернете, видео уроки, и, практически каждый сможет выполнить на стене оригинальную гипсокартонною нишу.
Подборка гипсокартонных плит займет не много времени. Классификация не очень община и состоит из:
· Гипсокартонный лист (ГКЛ) – является наиболее распространенным и дешевым материалом. Чаще всего к его использованию прибегают в случаях оформления помещений, ограниченных от влаги и воды. Основной цвет – серый. Такой тип гиспокартона можно узнать по характерным синим надписям маркировки.
· Гипсокартонный лист влагоустойчивый (ГКЛВ). В отличие от ГКЛ, данный вид может использоваться в помещениях с высоким уровнем влаги содержащейся в воздухе. Не редко им отделывают оконные или балконные рамы. Цвет исполнения – салатовый с синей или голубой маркировочной надписью.
· Гипсокартонный лист огнеустойчивый (ГКЛО). Название данного типа листа говорит за самого себя. Лист имеет в составе стеклопластик, который позволяет удерживать прямое попадание огня. Внешней отличительной особенностью является серый цвет, но уже с красной надписью.
· Гипсокартонный лист влагоустойчивый, огнеустойчивый (ГКЛВО) – комбинированные листы гипсокартона обладающие свойствами всех вышеперечисленных листов. Цвет плиты тёмно-зелёный, надпись маркировки — малиновая.

Для изготовления ниши из гипсокатрона, лучшим решением будет выбрать лист типа ГКЛ. Толщина стенки обычно составляет до 12 мм, а длина измеряется индивидуально, под каждый проект.
Для того, чтобы выровнять стену прибегают к подвесным навесам. Иногда, из-за толщины стены появляется проблема постороннего шума. Чтобы избежать этого, используют демпферную ленту. Формируют каркас стены из профилей. Гвозди, саморезы и дюбели также подбираются в индивидуальном количестве.
Из инструментов потребуются: ножницы по резке металла, шуруповерт, молоток, перфоратор с буром, измерительный приборы (уровень, линейка, треугольник, карандаши). Для внешней отделки используют шпаклевку, краску или обойный клей с обоями.
Набор инструментов и нужный материал
Для монтажа ниши из гипсокартона своими руками следует приготовить материалы, количество которых рассчитывается исходя из чертежа:
- Должны быть направляющие и стоечные профиля.
- В случае использования криволинейности, следует приобрести арочный профиль.
- Если будет изготавливаться ниша с полкой для телевизора или другой тяжелой техники, следует запастись поперечной балкой.
- Дюбеля и саморезы нужны для креплений.
- ГКЛ. Если предполагается создание ниши в кухне или ниша в ванной комнате, следует приобрести влагостойкий гипсокартон.
- Осветительные приборы, проводка под гипсокартоном, выключатель, розетка.
- Для финишной отделки ниши из гипсокартона понадобится шпаклевка, грунтовка и армированная сетка.
Набор инструментов для изготовления гипсокартонной конструкции:
- Потребуется перфоратор.
- Нужны различные отвертки.
- Может понадобиться молоток.
- В наличии должны быть ножницы для металла.
- Обязательно нужен уровень, метр, карандаш.
- Под рукой должны лежать пассатижи.
- Понадобится валик, шпателя, затирка (наждачка-нулёвка).
Не стоит забывать о собственной безопасности. В помещении обязана быть свежая вода, аптечка.
Как сделать шкаф своими руками
Для грамотного изготовления и монтажа шкафа строители рекомендуют придерживаться следующего плана работ.
Обследование планируемого места установки. Обязательно проверьте стены, пол и потолок, где будет размещено изделие
Важно установить наличие неровностей, дефектов, узких мест и других факторов, которые могут помешать, усложнить процесс проведения работ
Перед началом работ необходимо подготовить место для установки шкафа.
Сделайте замеры комнаты. Абсолютно ничего не получится без габаритов. Уберите основные размеры, проверьте, не будет ли будущая конструкция мешать проходу или затемнять комнату, нарушая поток естественных лучей света из окна
Важно правильно подойти к этому шагу
необходимо тщательно обмерять комнату.
Многосемейные дома, такие как частные, могут иметь неровные стены около пола и потолка. Чтобы правильно посчитать необходимые материалы, измерьте длину и ширину как у основания, так и у потолка.
Составление чертежа. Сюда входят замеры основных геометрических параметров места, где будет возникать конструкция, внутреннее устройство полок, перегородок, навесов для установки платяных штанг.
Рисунок необходим для правильного выполнения работы.
Составление схемы раскроя листов. Экономит деньги без излишков.
Чтобы избежать лишнего материала, необходимо составить схему раскроя листа.
Покупка и доставка комплектующих
Важно правильно подобрать профиль для каркаса, крепежа, шурупов и дюбелей. Экономия на данном этапе недопустима
Профиль для каркаса должен быть из качественного материала.
Подбор и покупка косметических составов. Важную роль играет выбор начального и конечного наполнения. От этого зависит конечный результат.
важно выбрать качественную шпатлевку и другие материалы. Завершающие работы по установке листов
Все стыки заделаны, внешние и внутренние углы обработаны, просверлены отверстия под светильники и другие декоративные элементы конструкции
Завершающие работы по установке листов. Все стыки заделаны, внешние и внутренние углы обработаны, просверлены отверстия под светильники и другие декоративные элементы конструкции.
После установки листов проводятся финальные работы.
Покраска поверхности. От правильного выполнения этого этапа зависит конечный результат — визуальное восприятие конструкции.
Как в итоге будет выглядеть ваш шкаф, зависит от правильно подобранной краски.
Установка раздвижных дверей. Не менее важный шаг к реализации идеи.
Важный этап — установка дверей.
Соблюдая пошаговую инструкцию по изготовлению шкафа из гипсокартона своими руками, установить его самостоятельно несложно.





































