Подготовка поверхностей откосов
Для того, чтоб процесс работы шел как надо, а конечный результат был выше всяких похвал, нужно тщательно следовать инструкции. Первый этап заключается в подготовке поверхности откосов к работе. Строителю необходимо обработать поверхность антисептиком, а также грунтовкой. Антисептический состав поможет обеззаразить поверхность. Это избавит её от лишнего мусора, очистит поверхность. Грунтовка повысит уровень адгезии между откосом и будущим материалом крепления.

Также нельзя забывать об очистке. Перед проведением монтажных работ нужно тщательно очистить поверхность от грязи, пыли и мусора. В других условиях работать будет невозможно. При необходимости нужно снять старый слой шпаклевочного материала. При помощи бетонной раствора поверхность нужно тщательно выровнять.
Отделка откосов гипсокартоном
Это популярный способ отделки. Для работы вам понадобятся:
- листы гипсокартона,
- смесь монтажная гипсовая,
- пена монтажная,
- уголки перфорированные,
- штукатурка гипсовая,
- строительный нож,
- шпатель большой и малый,
- рулетка, правило для измерений,
- пузырьковый уровень,
- грунтовка,
- шпаклевка.
Сразу оговоримся: такой способ отделки подходит, если объем работ внутренний, в помещении. Используйте влагостойкий гипсокартон. Из-за перепадов температур дома и на улице, на стеклопакетах может образовываться конденсат. Оконный проем накапливает влагу. От этого листы гипсокартона разрушаются, поэтому нужен материал с защитой. Если такого гипсокартона нет, обработайте обычный водоотталкивающей грунтовкой.
Как сделать откосы на окнах из гипсокартона? Выставлять откосы начинаем сверху окна. На этом этапе не снимайте пленку с рамы. Она сбережет чистоту в процессе работы.
Сначала нужно убрать лишнюю монтажную пену в проеме.
Источник фото: «Откосы из гипсокартона на окна», ВОЛМА, YouTube
Обрезаем ее у края оконной рамы по всему периметру. Формируем «бороздку» глубиной 5 мм, куда должен заходить лист гипсокартона. Его будем утапливать на 5 мм за раму окна. Ширина «бороздки» должна равняться толщине среза листа гипсокартона.
Меряем глубину будущего откоса. Прикладываем строительное правило к плоскости готовой ровной стены или к маякам будущей (если у вас новострой, стены без отделки). Рулеткой фиксируем расстояние от окна до правила. К нему добавляем + 2 мм для перфорированных уголков. Отмеряем эту величину — ширину на листе гипсокартона.
Фиксируем длину верхней части откоса. Отрезаем прямоугольник из гипсокартона нужной длины, ширины. Используйте строительный нож. Листовой материал отлично режется. Он состоит из 2 слоев плотного картона, посередине которых мягкий гипс.
Наносим шпателем монтажную смесь на поверхность верхней балки оконного проема. Работу проще выполнять движениями «к себе».
Утапливаем откос из гипсокартона в «бороздку» старой монтажной пены. Заделываем зазор между верхней балкой рамы и гипсокартоном новым слоем пены. Фиксируем на нее и на монтажную смесь наш откос.
Источник фото: «Откосы из гипсокартона на окна», ВОЛМА, YouTube
Не переборщите со строительной пеной. При высыхании она расширяется. В переизбытке конструкция может не выдержать: гипсокартон разорваться.
Пузырьковым уровнем проверяем, насколько горизонтально ровно стал откос. Фиксируем его подпоркой, подставив широкий плоский ровный брус, дощечку или панель.
Аналогично будем устанавливать боковые откосы.
Обрамляем готовую отделку перфорированными уголками. Стягиваем по ним откосы с плоскостью стены. Работаем шпателем и штукатуркой.
Даем отделке высохнуть. Убираем пленки по периметру рамы. Зачищаем стыки рамы и откоса от попавшей штукатурки. Проходимся грунтовкой. Ждем, когда высохнет. Тонким слоем в 1 — 2 мм наносим финишную шпаклевку. Даем высохнуть. Откосы готовы!
Подготовительные мероприятия
Прежде чем задаваться вопросом, как правильно сделать откосы, следует провести тщательную подготовку поверхности. Количество работ зависит от конкретной ситуации. Существует общий порядок, который обязателен для выполнения:
Все начинается с предварительного осмотра окна
Очень важно проверить, что изделие стоит надежно, рама занимает правильное положение и все створки открываются согласно требованиям. Если обнаружатся проблемы, то мастер, установивший оконную конструкцию, должен исправить все нюансы до того, как начнется последующая отделка
Это очень важная процедура. Пропущенные проблемы приведут к тому, что потребуется полная разборка конструкции и замена откосов.
Теперь можно приступать к основной подготовке. Проверяются все участки стен. Они могут иметь значительные разрушения старого слоя.
Все дефекты, которые могут обрушиться или имеют неустойчивое положения – снимаются. Если просматривается основание, то проверяется его качество. Это важно на кирпичных стенах. Иногда приходится проводить дополнительные укрепления.
Обрезается монтажная пена.
Подготавливается шпаклевочный раствор. Он будет применяться для замазывания всех трещин. Но предварительно выполняется пропитка поверхности грунтовкой и антисептиком. Используются составы, которые обладают глубоким проникновением.
Шпаклевка наносится во все щели.
Также устройство оконных откосов предполагает, что будет выполнена предварительная герметизация. Она заключается в том, что все стыки, участки срезанной пены – промазываются специальными составами.
После того как состав полностью высохнет, наносится еще одни слой грунтовки. Далее, может выполняться отделка откосов своими руками.
Применение железных конструкций
Металлические наружные оконные откосы
Достаточно часто на дачах и в частных загородных домах используется внешняя облицовка откосов при помощи оцинкованных листов. Металл имеет как положительные, так и отрицательные свойства. К положительным свойствам материала можно причислить:
- Металл не боится атмосферных влияний.
- Простота эксплуатации.
- Форма конструкции формирует громоздкую рамку.
К минусам можно причислить лишь потребности применения уплотнительной ленты, которая играет шумоизоляционную функцию. Обшить внешние откосы металлом собственноручно можно, но следует учесть, что такая процедура требует аккуратности и внимательности. Независимо от времени года, облицевать откосы следует как можно быстрее.
Поскольку неправильный подход к этому вопросу приводит к тому, что пена разрушается, а образовавшиеся трещинки вбирают влагу. Следовательно, нужно перед отделочными работами изучить, как правильно сделать металлические откосы на окнах снаружи. Технология включает следующие этапы:
- Проведение тщательных замеров.
- Подготовка поверхности.
- Процесс монтажа.
Замер основы оконного откоса
Необходимо скрупулезно отнестись к проведению замеров. Поскольку неправильно произведенные расчеты могут привести к тому, что возникнут проблемы с размерами заготовок (могут быть больше либо меньше нужных показателей). Оконные проемы, кирпичные стены, либо плиты из бетона, требуют скрупулезной подготовки. Поскольку такого рода строения подвержены осыпаниям и образованию трещин. Следовательно, необходимо произвести следующие манипуляции:
- Ликвидация излишков монтажной пены.
- При наличии сколов, щелей производится замазывание шпаклевкой.
- Поверхность и швы обрабатываются герметиком.
Герметизация окна
После высыхания нанесенных материалом можно приступать к установке откосов. Алгоритм произведения:
- Все размеры переносятся на панель и вырезаются при помощи ножниц по металлу.
- Облицовывать откосы следует с отлива. Этот элемент вырезается согласно оконной раме. Наружная часть вырезается в соответствии с предопределенными величинами проема с учетом припуска на стену. Боковые части должны иметь припуск 1 см.
- Фиксация отлива к каркасу производится саморезами.
- Производится монтаж вертикальных элементов на боковые стороны. Крепление производится шурупами.
- В последнюю очередь нужно сделать фиксирование верхнего элемента саморезами.
- Нанесение герметика на все прилегающие участки конструкции.
Сборка со стартовым профилем
Немного сложнее правильно установить откосы на пластиковые окна со стартовым профилем. Чем плотнее, жестче будет это изделие, тем лучше. Экономить здесь не следует, тем более что профиля нужно не так много. К раме его необходимо прижимать максимально сильно — так можно уменьшить число и величину зазоров. Порядок таков:

- Закрепить непосредственно у рамы деревянный брус. Он должен иметь такой наклон, под каким решено монтировать откос. Если дома нет возможности доработать элемент рубанком, лучше сразу брать подходящую угловую рейку.
- Поставить профиль по верхней горизонтали. Главная хитрость заключается в том, что углы нужно вымерять и резать строго по 45°. Если нарезку провести верно, свести воедино стыки будет легко.
- После установки верхней горизонтали проложить обе профильных вертикали, а затем нижний горизонт. Один угол на нем можно отпилить сразу, со вторым лучше подождать до контрольного замера прямоугольника — обидно будет ошибиться на последнем этапе.
- Теперь можно начинать крепить в профиль панели (их будут держать скобы). Средняя полоса длиннее проема. Ее нужно сначала приложить к профилю, разметить, снять, отрезать по размеру.
- Устанавливая полосу окончательно, ее нужно чуть отвести от стенки, чтобы залить пену. Потом панель нужно как следует прижать, подождать около 1 минуты и подравнять. Для верности полосу можно прикрепить до полной фиксации малярной лентой к стенке.
- По такому же принципу установить все остальные панели, подровнять углы и заделать щели.
- Зашпаклевать и выровнять территорию под подоконником.
https://youtube.com/watch?v=QKxWUyKqgt8
После полного высыхания конструкции появится несколько вариантов финальной отделки. Можно сначала поклеить обои, а затем поставить декоративные уголки. Можно обоями пренебречь, но зато выровнять, проштукатурить углы, а после этого прикрепить пластиковые накладки.
Не стоит гнаться за быстрым результатом в виде монтажа откосов на все окна сразу. Даже минимальный опыт повышает мастерство. Вторая конструкция наверняка выйдет лучше первой.
Отделка откосов деревом
Вагонка и доска отлично подходят для отделки не только стен и пола, но также откосов. Можно задействовать данный материал и в нашем проекте.
Рекомендуется выбрать вагонку. Дефекты ее качества можно скрыть шип пазовым креплением, да и сучки, отверстия от них, другие повреждения и недостатки проще отбраковываются при покупке.
Подготовка оконного проема не требуется, необходимо только размещение обрешетки для крепления вагонки; Обрешетка устанавливается вверху, внизу и посередине проема на ДБМ; Материал для сборки откоса заранее замеряется и подготавливается – выполняется порезка; Устанавливается стартовый деревянный угол от окна; В него набирается первая планка, которая крепится к обрешетке, вторая, третья, и далее по размеру откоса, с креплением каждой к обрешетке сверху, снизу и посередине на гвоздь или кляймеры; После установки последнего элемента вагонки, угол закрывается доборным декоративным элементом; Вагонка может быть окрашена, полакирована, обработана и краской, и лаком одновременно; Важно провести предварительноеантисептирование материала, а сам оконный проем предварительно обработать хлорным раствором для предупреждения возникновения грибка и плесени в данных местах!
Монтаж с использованием клеевого состава
Данный метод хорош тем, что не нужно сооружать каркас и уменьшать размер оконного проема. При этом ГКЛ крепится с использованием особых клеящих составов. Для этих целей можно использовать как обычную шпаклевку, так и специальный клей, что продается в строительных супермаркетах. Такой клей выпускается в сухом виде, и его нужно будет смешивать с водой. Делать это придется в большой ёмкости, перемешивая всю массу дрелью с насадкой миксер.
Если откосы для пластиковых окон из гипсокартона будут крепиться на шпаклевку или клей, то нужно использовать грунтовку. При помощи грунтовки создастся специальный слой, что улучшит адгезия скрепляемых материалов. Другими словами, благодаря грунтовке ГКЛ крепится более надежно. Перед несением грунтовки поверхность оконного проема нужно будет очистить от рыхлой штукатурки, грязи и пыли. Также грунтуется та сторона гипсокартона, которой он будет крепиться к поверхности.
На больших листах клей наносится кучками в нескольких местах
После того как грунтовка высохла, замешивается клеевая смесь. Она наносится шпателем на рабочую поверхность гипсокартона и крепится к проему. Если откосы нужно подровнять, чтобы их угол к плоскости окна был не таким тупым, то также клеящий состав наносится на оконный проем, куда крепится ГКЛ. Это поможет поднять уровень базовой поверхности.
Форма листов гипсокартона для развернутых откосов
С разметкой листов гипсокартона и их разрезкой на полосы не должно возникнуть никаких проблем. С этой задачей справится каждый, кто умеет пользоваться рулеткой и ножом. Кстати, начинать работу лучше с верхнего откоса. Сперва крепится он, а потом уже боковые листы ГКЛ, что будут служить дополнительной опорой для верхней части. Но этот момент не особо принципиален.
Схема расположения всех элементов после монтажа откосов
Обшивка откосов гипсокартоном завершена, теперь нужно провести финишную отделку.
- Углы шпаклюются, и на них крепится перфорированный уголок.
- Шпаклюются все откосы, чтобы сделать их полностью ровными и спрятать прикрепленные уголки.
- Наносится второй слой шпаклевки.
- Готовая поверхность может окрашиваться или обклеиваться обоями. Это уже дело вкуса каждого.
Грунтовка и окрашивание
Последним этапом работ становится грунтовка откосов. Проводится она с помощью широкой кисти, что позволяет избежать растрескивания, и соответственно подготовить поверхность к окраске.
Само окрашивание проводится с применением водоэмульсионной краски или эмали, основанием которой служит растворитель. Также довольно популярным решением стало использование акриловой краски.
Данный этап работ становится завершающим, проводится окрашивание в два слоя. Первый наносится от окна к краю, второй наоборот к окну, что позволяет избежать потеков, и скрыть следы кисти. Каждый слой наносится строго после высыхания предыдушего.
Отметим, что проведения работ такого типа займет примерно неделю. Также рекомендуем Вашему вниманию более подробно изучить как сделать откосы на окнах штукатурные на видео, представленном ниже.
Штукатурка оконных откосов своими руками: видео
Как сделать откосы на окнах из гипсокартона
Следующим вариантом становятся оконные откосы из гипсокартона своими руками. Следует отметить, что они являются несколько более практичными, чем пластиковые. Это обусловлено тем, что при незначительных повреждениях, в отличии от пластика, гипсокартон можно отремонтировать.
Для полноценного возврата исходного вида достаточно насести слой шпаклевки, после чего покрасить откос. Также отметим, что для проведения работ по монтажу такого типа откосов не требуется специальных навыков, но и также не следует забывать о достаточно большой трудоемкости производственного процесса. Сам по себе монтаж проводиться несколькими стадиями, среди которых:
- Обустройство каркаса (данный этап присутствует только при каркасном способе).
- Непосредственный монтаж гипсокартона.
- Шпаклевка и грунтовка поверхности.
- И в завершение проводится окраска.
Также отметим значительный эксплуатационный период такого типа откосов, но в то же время необходимо заметить и такое свойство гипса, как впитывание влаги. Таким образом для обустройства в регионах с повышенной влажностью, а также «влажных» помещениях, такой материал не подойдет.
Деревянные окна с пластиковыми откосами
Пластиковые панели часто используются как для наружных, так и для внутренних откосов. Ознакомимся с самым простым методом их установки – посредством стартового и других профилей.

Схема, иллюстрирующая установку сендвич-панелей или панелей из пластика в качестве откосов на окне

ПВХ панели для отделки стен
Шаг 1. Для начала в проеме срезаются излишки монтажной пены, способные помешать в ходе дальнейших работ. Поочередно определяются размеры всех поверхностей для более точной заготовки отрезков профилей.

Подготавливаются стартовые профили
Шаг 2. Профили нужных размеров нарезаются в соответствии с данными, полученными в предыдущем пункте.

Профили обрезаются
Шаг 3. По периметру проема саморезами крепятся стартовые профили.

Крепление профилей саморезами
Шаг 4. Далее выполняется примерка угловых профилей, их торцы стыкуются со стартовыми. Нужная длина отмеряется, изделие обрезается. Далее профили состыкуются со стартовыми по углам проема, однако саморезами не фиксируются.

Угловой профиль примеряется
Шаг 5. По тому краю, что противоположен раме (в примере он выходит в комнату), отмечаются точки, по которым сверлятся отверстия. В последние вставляются дюбели, на которые будут крепиться обрамляющие откос изнутри профили.

Место фиксации профиля
Шаг 6. Устанавливаются обрамляющие профили. Их крепят саморезами на дюбели, которые были установлены раньше.

Установка профилей, обрамляющих внутренний край оконного проема
Шаг 7. Между профилями вставляются пластиковые панели. Чтобы фиксация была более качественной, на стену предварительно загзагами наносится монтажная пена. Стыки между панелями и профилями заделываются герметиком.

Результат работы
Технология формирования и установки
После подготовки проема по окружности следует клеить пароизоляционную пленку. В точках сочетания участки пленки следует уложить с излишком 5-7 см и склеить по шву. Ленту нужно наклеить так, чтобы краешки не выдвигались за оконный каркас. После этого можно переходить к формированию откосов используя следующую инструкцию:
Крепим бруски дюбелями
Крепление брусового материала. Для этих целей берутся рейки из дерева толщиной 15 мм и шириной 40 мм. Следует выполнить подрезку реек по ширине и высоте наружного края проема. Закреплять рейки нужно дюбелями по окружности проема. Если стены отверстия волнистые тогда под планки рекомендуется подложить клинья.
Тщательно произвести нужные измерения. Надлежит осознавать, что все замеры нужно производить от каркаса, а не кромки спецпрофиля.
Раскрой откосов
Следует правильно вымерять длину и ширину стен отверстия, а также внимание уделяется углу наклона с каждой стороны. На плите надлежит отметить точки распила и вырезать заготовки
Получившиеся элементы следует приложить к стене и проконтролировать их месторасположение и угловое прилегание.
Крепление спецпрофиля. По наружной кромке проема короткими шурупами следует прикрепить спецпрофиль. По углам при сплочении брусков спецпрофиль следует закрепить так, чтобы не образовывались щели. Установка откосов начинается из изготовления окантовки. Этот конструкционный компонент изготавливается из F – образного профиля. Все манипуляции следует начинать с верхнего элемента. Профиль нужно нарезать по размеру наружного проема и запилить углы под 45 градусов. Приготовленный спецпрофиль следует приложить к бруску так, чтобы можно закрыть пластиком, но при этом не перегораживать паз для фиксации откоса.
Установка пластиковых откосов
- Фиксация профиля к бруску производится скобами. Аналогичным способом производится монтирование оставшихся отрезков. Приготовленный элемент откоса надлежит поместить в спецпрофиль, заранее покрытого герметиком. Образовавшуюся щель меж пластиком и стеной нужно заделывать утеплителем. Следует учесть, что пласт утеплительного материала не должен быть чрезмерно массивным либо располагать вакуумами. Внешний край откоса нужно завести в паз спецпрофиля и прижать для выравнивания панели. Дальше следует зашить боковые откосы, при этом скрупулезно распределяя теплоизоляцию. Если же внешние стены утеплены, тогда такие манипуляции с откосами можно не производить. В такой ситуации просветы между панелями и основанием откосов следует заделать монтажной пеной.
- Заключительный период предусматривает крепление декорирующих уголков, которые следует приклеивать клеем. Места соприкосновения панелей нужно обезжирить и все щели замазать акриловым герметиком. Акрил следует выдавливать непосредственно в щель, производится затирание и выравнивание, образовавшиеся излишки следует убрать влажной тряпкой. Все манипуляции следует проделывать на небольших участках и вытирать аккуратно дочиста. Поскольку, пока акрил не застыл, он достаточно легко убирается. Производится оштукатуривание участка проема под подоконником.
Виды штукатурки
Для получения максимальной выгоды от облагораживания новоустановленных пластиковых окон в плане отопления и достижения максимального комфорта следует в первую очередь присмотреться к специальной теплозвукоизолирующей штукатурке. Она обладает высокими отражающими свойствами за счет использования в качестве компонентов натурального сырья – вермикулита, перлита и их смеси с прочным гипсом.
Схема приготовления раствора для штукатурки достаточно проста – необходимо купить одну из вышеуказанных строительных смесей и развести ее водой, плавно и тщательно перемешивая. Консистенция готового раствора не должна быть очень жидкой, иначе штукатурка начнет течь прямо на откосах, но и не должна быть слишком густой и тянущейся – с таким раствором будет очень тяжело работать, и он будет схватываться слишком быстро.
На мешках со смесями обычно указывается оптимальное соотношение компонентов при приготовлении раствора, поэтому советуем следовать рекомендациям производителя. Также там будет указано, на какую площадь при данном приготовлении раствора будет рассчитано это количество смеси, поэтому, предварительно выяснив приблизительную площадь работ (с небольшим запасом) можно рассчитать, какое количество смеси необходимо приобрести.

Последовательность работ
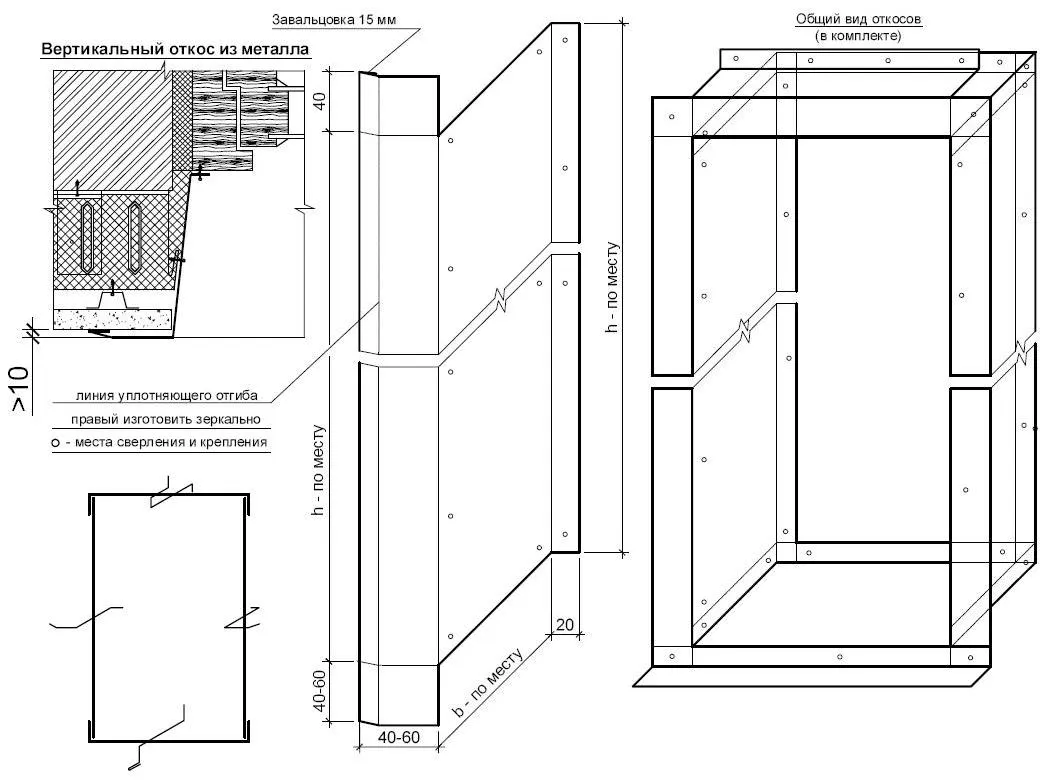
Установка металлических откосов на окна предполагает проведение замерочных работ. Ширина и высота изделия будут соответствовать внутренним и внешним параметрам проема. Изготовление верхнего, нижнего и боковых металлических элементов производится путем вырезания их из заготовленного металлического листа в соответствии с полученными измерениями.
Схема подрезки металлического откоса
Схема подрезки нижнего металлического отлива
Схема подрезки верхнего металлического отлива
На втором этапе работ происходит установка отлива, горизонтальное положение которого контролируется строительным уровнем. Нижний стык стены и оконной рамы оснащается специальным теплоизоляционным материалом и диффузионной лентой для шумоподавления и защиты от влаги.
Сначала необходимо установить отлив
Во время крепления отлива монтажную пену наносят на оконный проем и на отлив с внутренней стороны. Чтобы он не загнулся из-за расширения пены, на время его плотно прижимают. После того как отлив закреплен, приступают к монтажу металлических откосов.
Перед тем как устанавливать металлические откосы, необходимо те места, в которых они будут соприкасаться с рамой окна, обработать герметиком.
Металлические откосы закрепляют с помощью монтажной пены
Сначала устанавливают боковые элементы с соблюдением необходимого уклона изнутри наружу. Верхняя и нижняя части корректируются при помощи ножа в зависимости от уровня наклона.
Боковые элементы должны быть установлены в вертикальном положении и притянуты при помощи шурупов. Верхняя часть подгоняется под боковые элементы. Она выравнивается относительно внешних углов и закрепляется саморезами.
На завершающем этапе все места прилегания обрабатываются герметиком.
При монтаже откосов на фасад из профнастила используют горизонтальные перемычки
В случае когда фасад дома обшит профнастилом, при отделке оконных проемов необходимо использование горизонтальных перемычек. Это боковые полочки, изготовленные из профлиста, которые с одной стороны крепят к стене, а с другой – к металлопрофилю. Стальные наличники придают фасаду завершенность.
Металлические
Рассмотрим, как сделать откосы из метала на пластиковых окнах.
Данный вариант является самым удобным. Их намного проще установить, чем вариант откосов из гипсокартона. Минусом таких откосов является дороговизна материалов и то, что такие откосы не подходят под каждый дизайн оформления стен.
Металлические откосы делают, в основном, в деревянных домах. Древесина не стабильна, поэтому облицовка из гипсокартона, и из штукатурки не подойдет. На протяжении довольно короткого срока, такие откосы потрескаются.
Металл для таких откосов используется не толще 1 мм, если брать более толстый, то его будет проблематично резать ножницами по металлу. А использовать болгарку, для того, чтобы резать детали, будет не очень удобно.
Технология монтажа таких откосов, существенно не отличается от монтажа пластиковых панелей. Листы, используемые для металлических откосов покрыты порошкообразной краской. Это обеспечивает им долговечность, защиту от воздействия солнечных лучей, и защиту от ржавчины.
Листы продаются уже в готовом виде, нужно будет только раскроить их под нужные размеры, и закрепить саморезами. Крепить их стоит на обрешетку, так как крепеж к стене будет сделать проблематично. Обрешетка делается из деревянных планок толщиной до 30мм. Материал для откосов используется разных цветов, поэтому стоит подбирать саморезы под цвет откосов, чтобы не испортить их внешний вид.
Предлагаем посмотреть видео о том, как производится установка металлических наружных откосов:
Стоимость изготовления изделий из оцинкованной стали рассчитывается исходя из размеров, а также выбранного цвета. Изделия стандартных цветов по каталогу RAL обладают более низкой стоимостью. Ниже указаны стандартные цвета.
| RAL 1014 | RAL 1015 | RAL 1018 | RAL 3003 | RAL 3005 |
| RAL 3009 | RAL 3011 | RAL 5002 | RAL 5005 | RAL 5021 |
| RAL 6002 | RAL 6005 | RAL 6029 | RAL 7004 | RAL 7005 |
| RAL 8017 | RAL 9002 | RAL 9003 | RAL 9006 |
Изделия, цвет которых не входит в список стандартных цветов, окрашиваются отдельно. Наша компания окрашивает продукцию порошковой краской, которая обладает самыми высокими защитными показателями.
Условия отделки наружных откосов
Некоторые заказчики, установив окно и отделав внутренние откосы, откладывают устройство наружных откосов «на потом» и тем самым способствуют быстрому снижению эксплуатационных характеристик всего оконного блока.
По сути, можно уверенно сказать, что наружные откосы следует устанавливать в первую очередь. Особенно это актуально в тех случаях, когда окно установлено на высоте, и все работы по его наружной отделке можно проводить только изнутри помещения.
В этом случае отделочнику вынужденно придётся работать, находясь в оконном проёме, а подобные условия вполне могут привести к повреждению подоконника и уже отделанных внутренних откосов.
Представьте себе, что устройство оформления вашего пластикового окна со стороны улицы будет заключаться в оштукатуривании плоскости оконного проёма. Сколько при этом отделочнику придётся поработать с жидким раствором? И даже при самой высокой квалификации работника раствор, особенно наносимый на верхний откос, нет-нет, да и попадёт на подоконник, как бы вы его не укрывали, а оттуда – на пол в квартире или на боковые стороны внутреннего проёма.
Моя практика показывает, что в ситуации, когда в квартире (где невозможно оформить окно со стороны улицы) сначала были сделаны «под ноль» внутренние откосы, а только после этого отделочники занимались обустройством наружной части оконного проёма, по окончании всех работ внутренние откосы обязательно приходилось ремонтировать.
Поэтому, принимая решение по устройству откосов вокруг пластиковых окон, не оставляйте без внимания рекомендуемую мной последовательность выполняемых действий:
- установка оконного блока;
- устройство примыкания оконной конструкции и стен оконного проёма;
- отделка наружных откосов;
- утепление поверхности внутренних откосов;
- отделка внутренних откосов.
Если вы будете действовать согласно этому плану, то наверняка сэкономите энную сумму денег, которую пришлось бы потратить на ремонт уже отделанных, но повреждённых из-за нарушения очерёдности отделки внутренних поверхностей оконных откосов.
Отделка оконных проемов: заключительный этап
Если заводской пленки на рамах нет, то стоит их закрыть малярным бумажным скотчем. Лучше выбирать малярную ленту из среднего ценового сегмента, так как в этом случае клей практически не остается на основании. Рекомендуется после каждого этапа работ защитить окна новой лентой.
Малярная лента
После окончания монтажных работ все внутренние углы нужно обработать герметиком. Для этого используют влагостойкие варианты, инертные к биологическому поражению. Это могут быть прозрачные или белые составы, а также цветные для сантехнических работ. Последние уместны практически с любым интерьером. Иной вариант — жидкий пластик. Он смотрится просто и оригинально.
Если запланировано финишное окрашивание, то лучше выбрать акриловый герметик. Большинство из них обладает хорошей адгезией к лакокрасочным материалам. При этом покрытие не растрескивается, как поверх традиционного силикона.
Альтернативные способы монтажа откосов из гипсокартона
Установка гипсокартонного откоса на окно
Вывести откосы в идеальную ровность можно с помощью гипсокартона. Гипсокартонный материал подбирается влагостойкий, поскольку запотевание окон, конденсат, разрушат гипсовый материал быстро. Применяются обычные листы гипсокартона, но тогда используется грунтовка, а также защитные средства, краска. В некоторых случаях используется оконный блок с профилями со сторон, что является основой всего откоса.
Для монтажа используется профиль, который устанавливается на раме окна, за счет чего получается каркас. Профиль надо покрывать акриловым герметиком, после чего облицевать окно. Пространство между стенкой и гипсокартонным материалом заполняется изоляционными материалами. Далее, все фиксируется саморезами. Еще можно приклеивать гипсокартон на клей. Смесь наносится на гипсокартон, после чего придавливается к стене и держится несколько секунд, все выставляется по уровню.
Далее, наносится грунтовка, накладывается штукатурка и шпаклевка, в 2-3 слоя. После просыхания следует все покрасить цветной или белой краской. Угол откосов рекомендуется закрывать, используя декорирующий уголок.
Поверхность можно оформить как угодно, под нужный интерьер. Еще делают арки на окне или стандартный п-образный оконный откос.
Пайка швов
Некоторые монтажники клеят пвх уголок, чтобы закрыть стык панелей.
Мы же не будем извращаться, а сделаем на мой взгляд более правильно и эстетично. Перед пайкой, нужно хорошо зачистить это место, чтобы жидкий пластик хорошо лег. Берем чистую белую тряпочку (именно белую) и часть ее смачиваем в полироли.
Хорошо протираем панели в местах стыковки и оставляем высохнуть на 1-2 минуты. Затем отрезаем пипку у тюбика, так чтобы отверстие через которое будет поступать пластик было около 2 мм и под небольшим углом проводим от окна до стены выдавливая жидкий пластик.
У нас получается очень аккуратный стык. Наличники так же нужно спаять данным способом. Чтобы тюбик с пластиком не засох, нужно в пипку вкрутить саморез.
Теперь нужно дать пластику застыть, поэтому не рекомендуется мыть окна первые 2 часа. Вот в принципе и вся процедура по установке пластиковых откосов.

Заключение
Сложные многослойные откосы делали не всегда. Строители ограничивались аккуратным оконным проёмом. Но когда началась борьба за экономию тепла в жилых помещениях, обнаружили, что через незаделанные откосы идут большие потери. Современная конструкция предупреждает сырость этого строительного элемента и появление плесени. А внутренние откосы могут украсить квартиру.
Предыдущая Отделка стенТолько проверенные рекомендации по отделке откосов окна внутри и снаружи
Следующая Отделка стенЛучшие идеи дизайна помещений своими руками: мастер-классы по созданию настенных барельефов



































