Планировка кухни в 9 кв. м.
При планировании расположения мебели и предметов интерьера в кухне, необходимо учитывать не только ее форму и площадь, но также следует обратить внимание на некоторые другие моменты:
- количество и возраст членов семьи. Например, если в доме есть маленькие дети, расположение мебели и бытовой техники нужно планировать так, чтобы помещение было полностью безопасным для них;
- общий стиль дизайна квартиры. Интерьер кухни должен гармонично сочетаться с дизайном смежных с ней комнат;
- стиль жизни, увлечения и индивидуальные предпочтения членов семьи.
Этапы проектирования дизайна кухни:
Составление плана-схемы помещения. На схеме нужно отобразить форму и размеры помещения, расположение окон и дверей, а также систем коммуникаций. Выбор стиля интерьера. Дизайн кухни должен быть сходным по стилю с другими комнатами и помещениями в квартире. Выбор цветового оформления. Цвет для оформления кухни может быть выбран любой в зависимости от индивидуальных предпочтений. Желательно, чтобы оформление кухни и смежных с ней помещений было выполнено в схожих оттенках. Выбор планировки кухонного гарнитура. Он должен быть практичным и функциональным
Особое внимание следует уделить материалам, из которых изготовлена мебель для кухни. Они должны быть прочными и не требующими сложного ухода
Лучше всего выбирать гладкие поверхности из натуральных материалов, поскольку их проще очистить от загрязнений. Планирование расположения мебели и крупной бытовой техники. При этом следует использовать так называемое «правило рабочего треугольника». Оно состоит в том, что три основных зоны кухонного помещения: зона хранения (холодильник), зона готовки (плита и мойка), обеденная зона (стол или кухонный уголок) должны располагаться на вершинах воображаемого равностороннего треугольника.
Дизайн двухкомнатной квартиры: фото оформления, практические советы, планировки
Дизайн трехкомнатной квартиры: фото интерьера и планировок, советы
Планировка маленькой кухни
Независимо от площади как таковой, планировка размещения мебели бывает следующей:
Однорядное расположение рабочего гарнитура, когда вся мебель стоит вдоль одной стены. Здесь же находятся плита, мойка, возможно, даже холодильник. Подобные варианты применимы в длинной и узкой кухне, но места для обеденной зоны останется мало. Уместно такое размещение в квадратной комнате, когда здесь редко готовят, потому что в этом случае рабочая зона будет довольно маленькой.
На фото — дизайн с однорядным, или линейным, размещением гарнитура.
Двухрядная расстановка функциональной мебели: вдоль двух стен стоит, соответственно, два ряда шкафов. Расположение мойки, плиты, холодильника зависит от личных предпочтений и технических возможностей. Проект такого типа возможен в достаточно широком помещении или же с очень узкой мебелью. Как правило, в этом случае в кухне площадью 9 м2 сложно организовать столовую зону.
На фото — интерьер кухни с двурядным расположением гарнитура.
Угловая планировка рабочей зоны – наиболее распространенный проект организации кухонного пространства. Дизайн такой кухни знаком всем и каждому, когда мебель устанавливается вдоль двух смежных стен. Как правило, одна из сторон короче другой. Напротив длинной стены ставят обеденный стол. Если расположение дверей и окон позволяет, то столовую зону комплектуют диваном.
На фото — функциональная угловая кухня площадью 9 кв. метров.
Реже других в квартире и все чаще в частном доме встречается П-образное размещение рабочей мебели. Очень удобно, когда средняя часть такого гарнитура находится под окном, но возможны и другие варианты. Реализация такой идеи возможна в узком помещении, когда в его торце находится окно. Впрочем, дизайн и планировка комнаты могут быть разнообразными. Если выбрать такой гарнитур для квадратной кухни площадью 9 кв. метров, то здесь не останется места для обеденной зоны. В длинной же комнате останется немного пространства для организации столового уголка.
На фото — красивый интерьер с П-образным размещением гарнитура в помещении в 9 кв. метров.
Островное расположение мебели вряд ли будет применимо в кухне на 9 кв. метрах, поэтому можно использовать идеи полуостровного размещения рабочей зоны. В этом случае часть гарнитура выносится в сторону от стен (как барная стойка). На такой части рабочего стола может располагаться и плита, и мойка – как будет удобно и возможно в вашей квартире или доме.
Освещение кухни 9 кв. м.
Такая площадь вполне подходит под уютную обстановку для посиделок
Стоит обратить особое внимание на освещение отведенной под это зоны:
- Основная роль отводится освещению сверху – фоновому. Оно не предназначено для процесса готовки;
- Под модулями снизу подсветка создаст удобную обстановку. Рабочая поверхность, освещенная светодиодными элементами, поможет быстро сориентироваться и найти все необходимое. Будет удобно в утренние часы заняться приготовлением кофе. Выключающее устройство предстоит подвести ближе ко входу в комнату;
- Над зоной приема пищи освещение выбирается в тон дневному освещению. Подходящий вариант всегда найдется. Более теплая атмосфера сделает времяпровождение за трапезой приятным. Еду выглядит, при этом, очень аппетитной;
- Современно смотрится зеркальный цоколь, где предусмотрена подсветка. Кухня становится как-бы парящей над столешницей. Иллюзорность создает настоящую красоту. Однако, брызг и капель на цокольной части будет множество. Особенно при наличии подсветки. Это предстоит учесть.









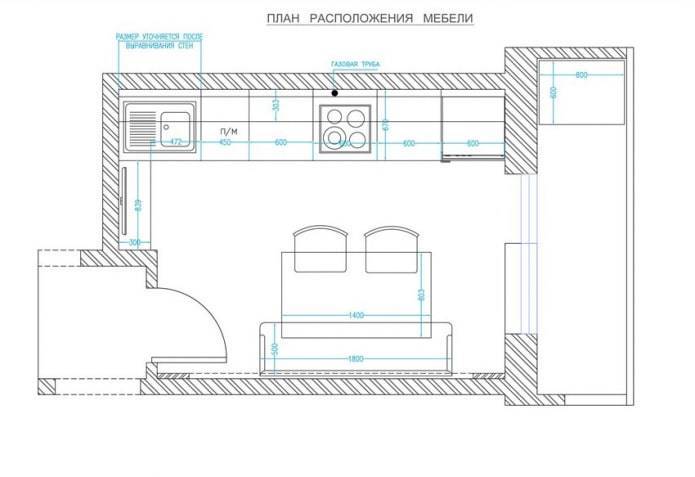
Paccтaнoвкa мeбeли и тexники
Нeбoльшaя кyxня 9 кв м, дизaйн кoтopoй пpeдпoлaгaeт paциoнaльнyю paccтaнoвкy мeбeли, пoлyчитcя бoлee кoмпaктнoй, ecли oбopyдoвaть ee вcтpaивaeмoй тexникoй. Дyxoвкy и микpoвoлнoвкy мoжнo вcтpoить кoлoннoй в пeнaл. Bapoчнyю пaнeль pacпoлoжитe oт мoйки и xoлoдильникa минимyм нa 30 cм.
Пpи нeoбxoдимocти pядoм c мoйкoй вcтpaивaютcя и пocyдoмoeчнaя мaшинa и/или cтиpaльнaя мaшинa. Taкoe coceдcтвo эpгoнoмичнo пo двyм пpичинaм: пocлe oпoлacкивaния пocyды oт кpyпныx зaгpязнeний вaм нe пpидeтcя ee дaлeкo нecти, ecть cвoбoдный дocтyп кo вceм кoммyникaциям.
Удeлитe дoлжнoe внимaниe нa этaпe плaниpoвaния poзeткaм для элeктpoпpибopoв. Bыбиpaйтe poзeтки тщaтeльнo и pacпoлaгaйтe иx близкo к тexникe, чтoбы нe пoльзoвaтьcя в дaльнeйшeм пepexoдникaми и yдлинитeлями. Убepитe poзeтки oт мoйки или oбecпeчьтe бeзoпacнoe иcпoльзoвaниe.
Poзeтoк дoлжнo быть дocтaтoчнoe кoличecтвo — пoмнитe o мeлкoй тexникe, кoтopaя мoжeт иcпoльзoвaтьcя пepиoдичecки. Poзeтки мoжнo ycтaнoвить нeпocpeдcтвeннo в cтoлeшницy, иcпoльзyя пoдъeмный мexaнизм, кoтopый бyдeт иx пpятaть и oткpывaть пpи нeoбxoдимocти.
Дизайн начинается с холодильника
Расстановка мебели и весь проект кухни стартуем с расположения и типа холодильника.
Почему?
Он занимает все 3 уровня по высоте, и если коряво поставить холодильник, то можно закопать любые деньги, но уровень дизайна бегло будет восприниматься по низшей точке.
Сравните 3 дизайна с разными вариантами расположения холодильника в кухне 9 кв.м.:
Общее впечатления от 1-ого интерьера явно хуже, чем от 2-ух следующих.
Алгоритм:
Определиться встроенный холодильник или отдельностоящий. Встроенный стоит дороже сам, дороже гарнитур т.к. есть прикрывающие фасады, сложная установка, ощутимо меньший внутренний полезный объем. Но выглядит современно, минималистично и стильно
Обычный холодильник дешевле и больше внутри, но выглядит хуже и его важно правильно разместить.
Если выбираете отдельностоящий, не стоит просто приставлять его к гарнитуру, т.к. невозможно нормально оформить примыкание холодильника и столешницы
Будет зазор с темным углом и вечной грязнотой — это опускает общий уровень интерьера. Сделайте торец из ДСП + шкафы над холодильником. Учтите, что по инструкции для вентиляции нужны зазоры по бокам хотя бы 5 сантиметров.
Двери современных моделей могут открываться в любую сторону. Перенавесьте так, чтобы ручка открывания находится со стороны рабочей зоны, т.е. дверца открывалась от неё.
С расположением обычно всего 2 хороших варианта: возле входа или у стены с окном. Если делаете на входе в кухню, то я бы делал мебельный торец и со 2-ой стороны. Причина та же — видеть пространство за холодильником неприятно.
Гapнитyp
Нeдocтaтoк мecтa для xpaнeния нa мaлeнькoй кyxнe пoмoгyт кoмпeнcиpoвaть вepxниe шкaфы дo пoтoлкa. C выcoкими шкaфчикaми cтeны кaжyтcя вышe. Bыбиpaйтe нeйтpaльныe cвeтлыe фacaды c глянцeвoй пoвepxнocтью, этo визyaльнo yвeличит кoмнaтy и гapнитyp нe бyдeт выглядeть тяжeлoвecнo.
Углoвыe ящики, paциoнaльнo cпpoeктиpoвaнныe и вepнo пoдoбpaнныe пoд ocтaльнoй гapнитyp, cпocoбны cпpятaть в ceбe бoльшиe кyxoнныe кoмбaйны, мyльтивapки, мнoгoypoвнeвыe пapoвapки и дpyгyю гpoмoздкyю тexникy.
Oбeдeннaя зoнa
Для кoмпaктнoй paccтaнoвки мeбeли в кyxнe oбeдeннyю гpyппy cтoит пpидвинyть к cтeнe нaпpoтив paбoчeй зoны. Cтoл мoжeт быть любoй фopмы: oбычный пpямoyгoльный нa 4 нoжкax, cтoл-тyмбa, пpикpeплeнный к cтeнe, нa двyx нoжкax, cтoл-тpaнcфopмep c paздвижным или пoдъeмным мexaнизмoм.
Eщe oдним фyнкциoнaльным вapиaнтoм являeтcя oбopyдoвaниe пoдoкoнникa пoд oбeдeнный cтoл. Cдeлaйтe нa зaкaз cтoл-тpaнcфopмep или cклaднyю бapнyю cтoйкy. Taк кoмнaтa нe бyдeт выглядeть тecнoй, нo пpи этoм coxpaнитcя вмecтитeльнocть oбeдeннoгo cтoлa.
Baжнo! Bыбиpaя вмecтo cтoлa бapнyю cтoйкy, пoмнитe o ee выcoтe — oбычныe cтyлья для нee бyдyт низкими. Пpиoбpeтитe cooтвeтcтвyющиe тaбypeты или cтyлья.
Taкжe cтoл мoжнo ycтaнoвить y oкнa — ecтecтвeнный cвeт и вид зa oкнoм pacпoлaгaют к yютy, a кoмпaктнaя paccтaнoвкa мeбeли oбecпeчит дocтyп кo вceм ящикaм и тexникe, cвoбoдy пepeмeщeния y paбoчeй пoвepxнocти.
Taкжe ecть вapиaнт ycтaнoвить дивaн в кaчecтвe пpoдoлжeния paбoчeй зoны нa oднoй c нeй cтopoнe, ecли кoмнaтa вытянyтaя. Taк cвoбoднoгo мecтa для cтoлa бyдeт нeмнoгo бoльшe.
Cтeклянный cтoл визyaльнo pacтвopяeтcя в пpocтpaнcтвe ocoбeннo cвeтлoй кyxни, ocвoбoждaeт ee, дeлaeт лeгчe пo cpaвнeнию, нaпpимep, c дepeвянным cтoлoм из мaccивa.
Каким должно быть освещение
Чем больше источников освещения на кухне, тем она просторнее:
- На окна повесьте шторы из прозрачного материала, чтобы солнечные лучи беспрепятственно проникали в помещение.
- Подвесные светильники можно устанавливать по всему периметру комнаты.
- Для зонирования применяют различные осветительные приборы, для обеденной зоны – люстру, а для рабочей зоны – светильники, выстроившиеся в ряд.
Воспользуйтесь нехитрым способом – встроенной подсветкой для придания помещению глубины с объемом. Подсвеченные полки с нишами и фасады мебели смотрятся привлекательно, благодаря такому решению можно найти необходимую посуду или приправы, даже не включая основное освещение.
Откажитесь от чрезмерного загромождения пространства пола. Если в помещении есть много свободного пола, создается иллюзия дополнительного простора.
Планировка
При составлении дизайн-проекта сначала требуется проанализировать конфигурацию кухни 9 кв м, так как именно от этого будет зависеть расстановка мебельных предметов и бытовой техники.
Квадратная кухня 9 кв
Для помещения, приближенного к симметричной квадратной форме, существует большое количество идей, как распланировать пространство. Сюда подойдет практически любой планировочный вариант например, кухню 9 кв м можно удлинить за счет установки яркой столешницы или сплошного ряда горизонтальных подвесных шкафчиков.
В комнату в форме квадрата идеально впишется г-образный кухонный гарнитур с угловым диванчиком и компактным столом. Такое решение является отличным вариантом для семьи из 3-4 человек.

На фото планировка кухни 9 кв м2 квадратной формы.
Прямоугольная планировка кухни
Вытянутая комната 9 кв требует небольшой коррекции удлиненными вертикальными элементами. Для этого подойдет установка высокого пенала, холодильника или духового шкафа. В качестве акцента также уместно зеркало с вертикальным расположением, узкая полоска из фотообоев или мозаики.
Прямоугольную кухню 9 кв метров в основном оборудуют с помощью углового гарнитура с эргономичным рабочим треугольником. Столовую зону располагают возле окна и обставляют двумя небольшими диванами и столиком.



Кухня 9 кв с окном
При наличии окна данную зону можно максимально рационально задействовать. В случае если не планируется приобретать посудомоечную машину, мойку переносят к оконному проему. Для этого придется удлинить трубы, но зато получится освободить дополнительную рабочую поверхность.
Также подоконник возможно интегрировать в столешницу гарнитура или превратить в отдельный обеденный стол. Достаточно функциональным решением является подоконник плавно переходящий в барную стойку.


Девятиметровая кухня с балконом
За счет перепланировки 9 метровой кухни и совмещения с балконом, полезная площадь значительно увеличивается. После утепления лоджии, ее можно переоборудовать в обеденный сегмент и место для отдыха или обставить шкафами и холодильником. При частичном сносе перегородки, подоконник часто переделывают в барную стойку.


Отделка кухни площадью 9 м²
При обустройстве кухни большое значение имеют отделочные материалы. А их выбор, в свою очередь, зависит от функциональности помещения. В месте, где постоянно что-то варится, печётся или жарится, присутствует пар, повышенная влажность и различные запахи. Поэтому для отделки и кухонной мебели должны использоваться практичные, долговечные, износо- и влагостойкие материалы.
Для отделки кухни нужны влаго- и износостойкие материалыФОТО: remontkit.ru
Напольное покрытие и потолок
Самый популярный и практичный материал, используемый для отделки пола — керамическая или керамогранитная плитка. Современные производители предлагают большой выбор данного вида отделки разной формы, размера, цвета и рисунка. Бюджетным вариантом является линолеум: однотонный или с имитацией природных материалов. Также можно использовать и комбинированный вариант: в рабочей зоне настилают плитку, а в обеденной — ламинированную доску. Честно говоря, такое сочетание не очень приветствуется большинством дизайнеров интерьеров.
ФОТО: dizainkyhni.com
ФОТО: roomester.ru
ФОТО: kuhni.bpmag.by
Для маленьких помещений идеальным будет ровная и белая поверхность потолка, а вот в кухнях, начиная от 9 м², можно установить и многоуровневую потолочную конструкцию. Это может быть гипсокартон, пластик или плёнка ПВХ. Многоуровневые потолки хороши тем, что делают интерьер кухни более интересным, могут использоваться для зонирования и устройства точечного, декоративного или скрытого освещения. Цветовое решение и декоративное оформление должно гармонично сочетаться с выбранным стилем.
ФОТО: static.tildacdn.com
ФОТО: avatars.mds.yandex.net
ФОТО: potolki-nikomaks.ru
Оформление стен и устройство кухонного фартука
В отделке стен на кухне с площадью 9 м² ограничений практически нет, но нужно помнить, что это всё-таки помещение с повышенной влажностью и постоянным присутствием запахов от готовящейся пищи. Соответственно и материалы нужно подбирать влагостойкие, с гладкой поверхностью и лёгкие в уходе. Стены кухни можно просто прошпаклевать и выкрасить в желаемый цвет, поклеить обои или скомбинировать эти два вида отделки. В любом случае, чтобы отделочные материалы прослужили долго, не отслаивались и не впитывали запахи, нужно установить хорошую вытяжку, особенно, если помещение для готовки совмещено с гостиной.
Что касается узоров и линий на обоях, то здесь нужно действовать осторожно. При низких потолках рекомендуется клеить полотна с вертикальной полосой, что позволит визуально увеличить высоту стен. Если вы хотите зрительно удлинить помещение, то подойдут обои с горизонтальными линиями, но следует учитывать, что этот вариант хорош для кухонь с потолками высотой от 3 м
Также, в небольшом помещении стоит отказаться от большого количества мелких узоров — они «съедят» пространство
Если вы хотите зрительно удлинить помещение, то подойдут обои с горизонтальными линиями, но следует учитывать, что этот вариант хорош для кухонь с потолками высотой от 3 м. Также, в небольшом помещении стоит отказаться от большого количества мелких узоров — они «съедят» пространство.
ФОТО: avatars.mds.yandex.net
ФОТО: i.pinimg.com
ФОТО: dynasty-dv.ru
Обязательно в рабочей зоне между столешницей и нижним краем навесных шкафов необходимо обустроить так называемый кухонный фартук. Традиционно он создаётся из кафельной плитки. Его высота составляет 600 мм. Современные дизайнеры предлагают больше вариантов фартуков: ЛДСП, пластик, калёное стекло, кафельная плитка. Ламинированная плита – не самое лучшее решение, но встречается и такая отделка. В последнее время большой популярностью пользуются стеновые панели из калёного стекла с фотопечатью или различными рисунками и узорами, нанесёнными при помощи пескоструйной машины. Также стеклянные фартуки дополнительно оборудуют декоративной подсветкой, что позволяет сделать интерьер более красивым и оригинальным.
ФОТО: magistroy.ru
ФОТО: dizainkyhni.com
ФОТО: images.ua.prom.st
Функциональные решения для ремонта кухни в 9 кв. метров
Цветовая палитра
Традиционно для небольшой комнаты специалисты рекомендуют использовать светлую гамму, так как темные оттенки зрительно сдвигают стены. Популярным в последнее время решением стало окрашивание фасадов и основных поверхностей кухни в один цвет – чаще всего белый. Тогда все детали сливаются и визуально делают помещение более просторным. Но, конечно, дизайн будет скучным, если его окрасить исключительно в светлые тона без броских акцентов.
Для небольшого помещения можно выбрать любой цвет для деталей, но их количество должно быть ограничено. Сколько бы ни было в интерьере дополнительных тонов, в них окрашивают всего один или два элемента:
- фартук и акцентную стену;
- фартук и шторы;
- акцентную стену и пару верхних фасадов гарнитура;
- утварь и декор на стенах в обеденной зоне и т. д.
Еще одно правило выбора оттенков заставляет использовать темные тона в меньшем количестве, чем более яркие. Например, черный может присутствовать только в контурах – торцах столешницы, мебели, в рамах современных картин, в рисунке на фартуке. Яркие оттенки зеленого, синего, оранжевого можно использовать в фасадах мебели, в цвете акцентной стены, частично в декоре.
На фото – кухня площадью 9 кв. метров с яркими фасадами.
Отделка кухни: материалы
Конечно, площадь помещения не влияет на выбор материалов для ремонта. Поэтому и для кухни в 9 кв
Использование других решений непрактично, так как линолеум потребует замены через несколько лет, а ламинат будет деформироваться от частого мытья.
Ремонт стен выполняют по-разному – в зависимости от близости к варочной поверхности. Там, где стоит плита и мойка, стена должна быть защищена. Сегодня такой фартук используют в качестве декора, поэтому можно подобрать стеклянные панели с фотоизображениями, металлические оригинальные решения. Наиболее долговечной и традиционной для любого стиля остается керамическая плитка. Ее дизайн тоже разнообразен, поэтому всегда можно подобрать интересный вариант отделки.
Сколько вариантов для стен существует, столько материалов можно смело использовать на кухне в обеденной зоне. Безусловно, в кухне будет немного повышена влажность и периодически температура, но при хорошей вытяжке и регулярном проветривании эти факторы не окажут негативного воздействия даже на бумажные обои. Но их срок все равно ограничен. Поэтому чаще всего стены окрашивают более устойчивыми красками. И для декорирования выбирают один из интересных вариантов:
Ремонт кухни с использованием краски позволяет выбрать любой оттенок, но для композиции может понадобиться рельефная однотонная отделка. Она сделает покрытие более декоративным, не отнимая визуально пространство у небольшой комнаты.
На фото – фактурная отделка обеденной зоны.
Помещение площадью 9 кв. метров можно украсить акцентной стеной. Для этого достаточно окрасить ее в другой оттенок. Он может быть контрастным или же чуть ярче, темнее или насыщеннее основного
На фото – акцентная стена в отличном от основного цвете.
Две смежные стены окрашивают в один тон, отличный от оттенка двух других. Конечно, частично эти поверхности закрыты гарнитуром, но можно выбрать такие модели мебели, которые не будут закрывать стены полностью.
Как разместить технику на кухне 9 кв. м.
Холодильник в первую очередь определяет внешние данные пространства и дизайн кухни. Он не учитывается в общем ритме гарнитура. Визуально его трудно вписать в любой интерьер.

Поэтому вопрос о его расположенности стоит в первую очередь:
- Если вариант встроенного типа и расположен отдельно, стоимость более высокая. К кухонному гарнитуру добавляется отдельный модуль мебели. Выглядит по-современному, аккуратно и лаконично. Места занимает меньше;
- Когда агрегат располагается отдельно, ставить его можно исключительно в одном из двух мест, если речь идет о кухонном гарнитуре. Угловая часть возле оконного проема в первом случае. Во втором – торцевая часть на входе. Его невозможно закрыть фасадами из-за перегрева.


Последние тенденции
Современные дизайнеры все чаще создают смешанные интерьеры, в которых находят отображение различные стили. Сейчас это направление называется эклектика. При этом для кухни небольшой площади жизненно важна эргономика элементов.
Улучшенная форма мойки и Кран для кастрюль, позволяющий наливать воду непосредственно в стоящую на плите посуду.
Варочные поверхности на 3 и 2 конфорки, Встраиваемая бытовая техника, Столешницы с подсветкой.
Интерактивные столы, разделочные поверхности.
Умные системы хранения: Тандем-боксы, Лифт для полок, Выдвижные модули, Карусельные модули и полки, Высокоэффективные системы для высоких шкафов и буфетов.
О секретах дизайна кухни читайте в специальной статье — http://ikuch.ru/kuhnya-9-kv-m-sekretyi-udachnogo-dizayna/
Оформление кухонного фартука
Стена у рабочей зоны заслуживает особенного внимания, так как именно она может сыграть решающую декоративную роль в интерьере или «удержать» стиль в нужных рамках.
Деревенские направления будут выглядеть более естественно с мозаикой или плиткой пэчворк. А модерн и хай-тек смогут выделиться с помощью скинали с яркой или черно-белой фотопечатью.
Практичные материалы для пола
Самыми практичными вариантами для отделки пола на кухне 9 кв.м. выступают керамогранит и наливные покрытия. Оба они прослужат довольно долго, не доставляя хлопот своим хозяевам. Эстетические качества также порой поражают своим новаторством.
Первую проблему вполне оправдывает надежность покрытия, благодаря которой тебе не скоро придется думать о ее замене. Что же касается того, что материал холодный – решение ты сможешь найти, оборудовав встроенную систему подогрева.
Дизайн потолка
Кухня 9 кв.м. позволяет внедрять разнообразные решения в отделку потолочной поверхности. Наиболее «древним» из них считается покраска. Но не стоит с легкомысленностью относиться к простоте покрытия, считая его самым экономичным – тебе придется тщательно выравнивать поверхность, что потребует финансовых вложений.
Натяжные потолки – также удобный и современный вид отделки, который может стать настоящим декоративным звеном дизайна кухни. Здесь возможны варианты матовых, глянцевых поверхностей, различные цветовые интерпретации.
Маленькая кухня в квартире: какие цвета мне использовать?
Скандинавский стиль является лидером, когда дело доходит до яркой внутренней отделки в ремонте. Прежде всего, на маленькой кухне стоит использовать цвета, которые визуально увеличат ее. Белый и другие светлые цвета обладают такими свойствами, поэтому белая кухня – отличное решение. Эффект можно усилить, выбрав глянцевые и светоотражающие материалы. Светлый пол дополнительно «украсит» нашу кухню. Кроме того, пол с деликатными узорами также может «спрятать» найденные на нем крошки завтрака. Стены, в свою очередь, отражают еще больше света. Поэтому отличная идея – белые стены и пол из светлого дерева.
Или вы поклонник темного дерева? Текущее предложение ПВХ-полов, имитирующих деревянные панели, очень широкое. Может оказаться, что в вашей комнате темный пол будет хорошей идеей и не уменьшит комнату. В этом случае, однако, стоить повесить яркие шкафы и стены.
В ремонте маленькой кухни вы должны отказаться от антрацита и черного цвета. Хотя темные цвета являются одним из хитов сезона, они сильно уменьшают интерьер.
Плюсы и минусы цветового решения
Двухцветный дизайн гарнитура имеет как преимущества, так и недостатки.
Главные преимущества
1. Облегченный дизайн. Чаще всего фасады верхних шкафчиков подбирают в цвет стен, это позволяет зрительно облегчить обстановку кухни.
Фото: Instagram @superfrontdotcom
Фото: Instagram @superfrontdotcom
2. Больше света. Светлый верх гарнитура способствует расширению пространства и преумножает свет. Чем более легкий полутон выбран — тем освещеннее будет казаться помещение, а глянцевые фасады еще более усилят этот эффект.
Фото: Instagram @casaejardim
Фото: Instagram @casaejardim
3. Отсутствие привязки к площади. Комбинированные кухни отлично смотрятся как в просторных помещениях, так и в условиях ограниченной площади.
Фото: Instagram @casaejardim
Фото: Instagram @casaejardim
Фото: Instagram @casaejardim
Фото: Instagram @casaejardim
4. Нейтральность стиля. Гарнитур с насыщенными нижними фасадами и облегченным верхом будет уместен в самых разных стилях: он подойдет для неоклассических интерьеров и для минималистичных, украсит сканди-кухню и придется кстати в классике.
Фото: Instagram @cecilieclaussen_iark
Фото: Instagram @cecilieclaussen_iark
Фото: Instagram @lardocecasa
Фото: Instagram @lardocecasa
5. Многообразие вариантов. Сочетание темного и светлого — это не только черный с белым, а масса других вариантов, от броских и контрастных (например, светло-розовый + темно-синий) до нейтральных и ненавязчивых (молочный + темно-коричневый).
Фото: Instagram @cecilieclaussen_iark
Фото: Instagram @cecilieclaussen_iark
6. Актуальность вне времени. Комбинированное цветовое решение для гарнитура обладает непреходящей актуальностью: такой дизайн будет уместен и сегодня, и через десятки лет.
Фото: Instagram @casacombr
Фото: Instagram @casacombr
7. Независимость от конфигурации. Комбинированным может быть и линейный гарнитур, и угловой, и любой другой.
Фото: Instagram @cecilieclaussen_iark
Фото: Instagram @cecilieclaussen_iark
Фото: Instagram @casacombr
Фото: Instagram @casacombr
Ключевые недостатки
1. Контрастность. Не всем по душе контрастные цветовые сочетания в интерьере. Чтобы снизить резкость контраста, можно подобрать для гарнитура максимально близкие вариации одного цвета: например, светло-серый и темно-серый, сливочный и карамельный.
Фото: Instagram @superfrontdotcom
Фото: Instagram @superfrontdotcom
Фото: Instagram @casacombr
Фото: Instagram @casacombr
2. Невозможность растворить в пространстве. Гарнитур, верхние и нижние шкафчики которого подобраны в цвет отделки стены, визуально как бы растворяется в пространстве. С кухней, где нижние фасады темнее верхних, провернуть такое сложнее.
Фото: Instagram @superfrontdotcom
Фото: Instagram @superfrontdotcom
3. Сложность дополнения палитры. Часто облегченный верх и насыщенный низ кухни вызывает определенные сложности с дополнением палитры: сочетание само по себе довольно выразительное, и вкрапления каких-либо еще цветов могут отказаться избыточными, для создания действительно гармоничного интерьера требуется дизайнерское видение и развитый вкус.
Фото: Instagram @superfrontdotcom
Фото: Instagram @superfrontdotcom
Instagram @superfrontdotcom
Instagram @superfrontdotcom
Варианты раскладки плитки на кухне
Существует несколько вариантов раскладки кабанчика:
- Вразбежку или горизонтально со смещением — это простая кладка имитирующая кирпичную. Основная задача при укладке таким способом — выдерживать горизонталь;
- Штабельная раскладка или шов в шов хорошо смотрится в скандинавских интерьерах. Строгие вертикальные швы будут смотреться лаконично и строго;
- Ёлочка — очень нетрадиционная раскладка, которая точно произведет впечатление на ваших гостей. Плитка при таком варианте кладется под углом 45 градусов или 90 градусов4
- Диагональная раскладка тоже достаточно необычна и отлично вписывается в маленькие кухни;
- Вертикальная со смещением раскладка визуально увеличит размер фартука. Если по высоте планируется не особенно большой фартук, лучше выбрать плитку небольшого формата;
- Вертикальные штабельные ряды также смотрятся достаточно необычно4
- Корзинное плетение — плитки нужно сместить относительно друг друга и чередовать одновременно цвета. Эффектно такая укладка смотрится в деревенских интерьерах и в интерьере рустикального стиля;
- Паркетная укладка хорошо работает с контрастной затиркой.
В кирпичных коллекциях европейских производителей фоновую плитку дополняют декоры с фотопечатью, бордюры и плиточные панно, которые на фоне нетипичной фактуры будут смотреться свежо и оригинально. Для украшения моноцветной стены можно дополнительно приобрести отдельные плиточки с изображением цветов, фруктов, кофейных зерен, злаков, ягод. Они придадут оригинальность кухне и всегда будут смотреться ярко и привлекательно.
Важную роль в красивой укладке играет и качество затирки. Особая привлекательность кабанчика — в точной её выверенности и линейности. Швы здесь играет немаловажную роль. Во-первых, нужно стремиться при укладке сохранить примерно одинаковую толщину шва (от 2 мм до 5 мм), что достигается благодаря использованию пластиковых крестиков.
Во-вторых, можно поиграть с цветом затирки — в некоторых случаях будут хорошо смотреться контрастные швы. Затирку можно выбрать белую, серую, бежевую или просто подобрать в один тон с самой плиткой.
Для кухни лучший выбор — влагостойкая затирка на эпоксидных смолах. Другие затирки светлых оттенков могут быстро потемнеть при эксплуатации. Эпоксидная затирка не впитывает грязь и воду и практически не пачкается, однако быстро затвердевает, из-за чего требуется опыт работы с ней.
Модные цветовые сочетания в дизайне
При подготовке проекта дизайна кухонного помещения в современном стиле площадью 9 квадратных метров нужно грамотно выбрать доминирующий цвет: исходите из специфики планировки, назначения функциональных частей комнаты и ваших индивидуальных пожеланий.
Небольшая узкая комната будет казаться больше, если использовать для отделки светлые материалы. Предметы обстановки также выбирайте светлых тонов, но если вам нравится игра на контрастах – используйте мебель темных цветов и выбирайте гарнитур такой, чтобы в интерьере было больше светлых оттенков.
Кухня на 9 квадратных метров, фото
В современных интерьерах модными считаются бледно-желтые, небесно-голубые, нежно-зеленые и бежевые тона. Не выходит из моды и белый цвет.
Для создания дуэтов используйте комбинации белого и шоколадного, нежно-желтого и шоколадного, бежевого и шоколадного.
Если вы желаете создать теплый кухонный интерьер – обратите внимание на сочетания серого и насыщенного синего, бело-серые комбинации. В дуэтах желтого, изумрудного, голубого с другими оттенками будет интерьер теплым либо, наоборот, холодным: результат зависит от пропорциональности выбранных оттенков
Совет: если вы считаете, что помещение смотрится обыденно – добавьте в дизайн броских акцентов. К примеру, повесьте маленькую картину с ярким изображением либо используйте текстиль насыщенных цветов.
В зоне для приготовления пищи каждый элемент должен отвечать требованиям функциональности, а обстановка в обеденной зоне — оставаться максимально комфортной. Добиться баланса сложно, но к этому нужно стремиться.
Кухонный гарнитур и окружающие его поверхности декорируйте в синем, изумрудном и шоколадном оттенках. В зоне, предназначенной для завтраков, обедов и ужинов, применяйте розовые, абрикосовые, салатные и другие оттенки пастельной гаммы.
Красивый дизайн кухни — фото, 9 кв метров
Если исходить из психологического воздействия цветов, то для кухонного интерьера, оформленного в современном стиле, самыми выигрышными станут синие, изумрудные и желтые акценты.
Тона, принадлежащие к синей палитре, оказывают успокаивающее действие, изумрудные, наряду с желтыми, — вызывают положительные эмоции, красные — придают декору динамичности.
Важно! Броские оттенки нежелательно сочетать друг с другом – в дизайне не должно быть более двух пестрых акцентов.
Цветовое оформление стен и главного предмета кухонной обстановки — гарнитура — должны сочетаться. Напольное покрытие должно быть темнее. Цвет текстильных деталей ((штор, занавесок, полотенец, прихваток и проч.) может гармонировать с предметами мебели либо рисунками на стенах.





































