Встраиваемые розетки в интерьере кухни ↑
Встраиваемые блоки розеток – это современное и удобное решение для любого помещения. Кухня не является исключением. Такие электрические гнезда представляют собой не что иное, как всем известные удлинители, которые «утоплены» в поверхность того или иного предмета мебели. На кухне в качестве рабочей поверхности служит столешница или днище навесного шкафчика.
Виды встраиваемых розеточных блоков ↑
Встраиваемые конструкции делятся на два основных вида: стационарные и выдвижные.
Стационарные модели устанавливают в выбранной плоскости без возможности изменения положения. От попадания мусора и влаги розетки защищают крышками. Для подключения бытового прибора ее достаточно отодвинуть. Это и есть основным недостатком, так как крышка скрадывает свободное место на столе.

Стационарный встраиваемый розеточный блок
Выдвижные модели лишены этих недостатков. В нерабочем состоянии вам видно лишь крышку блока – его верхнюю часть, которая выглядит крайне лаконично и эстетично, выступая над поверхностью предмета мебели всего на 1-2 мм. Но вам достаточно нажать на саму крышку, углубление на ней или рядом расположенную кнопку, чтобы сработал выдвижной механизм. Он выталкивает блок целиком или частично.
Во втором случае вам необходимо приложить небольшое усилие и вытянуть его до конца. Представшие вашему вниманию розетки будут полностью готовы к работе. Чтобы убрать их, достаточно «утопить» конструкцию в предмет мебели, нажав все на ту же крышку.

Установка выдвижного блока в днище шкафчика
Выдвижные розеточные блоки могут быть вертикальными и горизонтальными. Принципиальных различий между ними нет, но вертикально ориентированные модели имеют свойство быстрее расшатываться при регулярной эксплуатации. Горизонтальные, в свою очередь, могут создавать неудобства при эксплуатации угловых вилок.
Вертикальная выдвижная розетка

Горизонтальный выдвижной блок в столешницу
Встраиваемая розетка на кухне – достоинства и недостатки ↑
Встраиваемые блоки розеток – решение для современной кухни и практичной хозяйки. Их достоинствами по праву можно считать:
- Расширение возможностей по электропитанию мелких бытовых приборов.
- Отсутствие необходимости постоянно искать свободную розетку и подключать бытовую технику к сети попеременно.
- Минимизация количества розеток, установленных на стенах и портящих их внешний вид.
- Простота установки. Ее легко выполнить своими руками.
Недостатки выдвижных розеток:
- Подходят лишь для временного подключения приборов.
- Не могут быть установлены на таком участке столешницы, под которым есть выдвижные ящики или панели.
- Их необходимо придерживать рукой при подсоединении и вынимании вилки, чтобы блок не расшатался.
- Высокая цена на действительно качественные изделия от известных производителей.
Установка выдвижного розеточного блока своими руками ↑
Для простоты установки выдвижные блоки изготавливают со штепсельной вилкой. Ее наличие существенно облегчает подключение столь оригинального удлинителя к электросети. Вам остается лишь выполнить следующие действия:
- В целях безопасности отключить электропитание и надеть резиновые перчатки, не проводящие ток.
- Определить место установки блока.
- С помощью имеющегося в комплекте шаблона сделать отверстие в столешнице или днище навесного шкафчика.
- С помощью крепежных элементов, также идущих в комплекте с розеточным блоком, закрепить его в отверстии.
- Подключите изделие к сети.

Установка выдвижного розеточного блока GTV
Как видите, встраиваемые блоки легко установить самостоятельно. Остальные же моменты рекомендуется обсуждать с опытным мастером-электриком, который может не только выполнить все работы, но и дать грамотный совет по оснащению кухни бытовыми электроприборами.
Источники
- http://kuhnier.ru/decor/vstraivaemye-vydvizhnye-rozetki-dlya-stoleshnicy.html
- http://KitchenGuide.su/dizain/planirovka/vydvizhnye-rozetki.html
- http://sovet-ingenera.com/elektrika/rozetk-vykl/vydvizhnye-rozetki-dlya-stoleshnicy.html
- http://electricadom.com/vstraivaemye-v-stoleshnicu-rozetki-ehkonomyat-rabochuyu-ploshhad-stola-i-ne-portyat-vneshnijj-vid.html
- http://KuhnyaGid.ru/remontiruem/elektrika/vstraivaemye-rozetki-dlya-kuxni.html
- http://kitchenremont.ru/tekhnika/vstroennaia-tekhnika/vydvizhnye-rozetki-dlia-kukhni
Расположение розеток
При разработке схемы размещения розеток, следует руководствоваться нормативными документами.
Это могут быть:
- СНиП 3.05.06-85 для монтажа электротехнических устройств.
- ГОСТ 7396.1-89, для разработки электрических схем подключения электроприборов.
При установке кухонных розеток, необходимо соблюдать такие нормативы:
- Размещаться они должны от плинтуса на высоте не менее 20 мм.
- Бытовой прибор, для подключения в сеть, должен располагаться от розетки на расстоянии до одного метра.
- При такой установке на изделие не будут попадать пары влаги или брызги воды.
Сколько нужно на кухне розеток
Расчет числа розеток выполняется с учетом количества электроприборов, присутствующих на кухне, и прибавляется 20-25% запасных.
При этом приборы монтируются:
- Для плиты с индукционной поверхностью, электроподжигом или электрическим духовым шкафом.
- Под вытяжку (см. Розетка для вытяжки: как выбрать и установть своими руками).
- Для подключения крупной бытовой техники: холодильника, стиральной машины, телевизора.
- Для встраиваемой техники, микроволновки, электрочайника, и других приборов.
Подсчитав количество приборов для подключения, прибавив запас, получается общее число розеток, которые понадобятся для монтажа на кухне. При недостаточном их количестве, переделать систему будет достаточно сложно, а иногда и невозможно, и придется пользоваться удлинителями, что не слишком удобно.
Примерный перечень электроприборов на кухне и их подключение к электросети
Распределение мощности
При обустройстве кухни, всю ее технику следует разделить по интенсивности эксплуатации и потребляемой мощности. Для подключения небольших бытовых приборов, достаточно установить 4 точки подключения: по две из одной розетки — на кухне крупная техника обычно работает постоянно.
Размещение бытовой техники на кухне
Для монтажа обязательной группы нужны индивидуальные розетки, которые рассчитываются на соответствующую мощность. При игнорировании этого правила, при подключении двух агрегатов большой мощности к одному источнику питания, может возникнуть избыточный нагрев и оплавление розетки.
Недопустимо для остальных приборов одновременно подключать устройства с совокупной мощностью, превышающей возможности розетки. Инструкция по выбору правильных розеток предлагает такую простую формулу: мощность агрегата делится на 220. Получается сила тока, рассчитанная на одну розетку.
Примерные величины мощности для крупной техники:
- Духовка – от 2500 Вт.
- Плита – 1000-1500 Вт.
- Машина посудомоечная – от 1000 Вт.
- Машинка стиральная – от 1500 Вт.
- Водонагревательный бак – от 1500 Вт.
- Холодильник – 200-1000 Вт.
- Камера морозильная – 300 Вт.
Для мелких кухонных приборов:
- Микроволновка – от 800 Вт.
- Электрочайник – от 500 Вт.
- Блендер – до 300 Вт.
- Комбайн для кухни – 1200-1500 Вт.
- Кофеварка – от 900 Вт.
На кухне могут быть:
- Телевизор, потребляющий – 200-330 Вт.
- Ноутбук – 50-75 Вт.
Чтобы избежать неприятных последствий, необходимо соблюдать несколько правил:
- Суммарная мощность подключенных в розетку приборов, не должна превышать допустимую нагрузку. Нельзя в одну розетку одновременно подключать чайник и микроволновую печь. Мощность приборов уточняется в технических паспортах к приборам.
- На кухню должно заводиться столько линий, которые будут питать розетки, чтобы их хватило на все агрегаты с двукратным запасом.
- Для крупной бытовой техники и электроплиты, лучше устроить отдельные линии с требуемым сечением, медные с установкой защитной автоматики.
- Приборы с металлическим корпусом, требуют заземления. Розетки для них необходимо подключать через дифференциальный выключатель-автомат или устройство защитного отключения (УЗО).
- Запрещается устанавливать розетки непосредственно за встраиваемыми духовыми шкафами, вытяжками, холодильниками, они должны располагаться сбоку на расстоянии 20 см.
- Розетки над столешницей устанавливаются выше ее на 15 см. Запрещается монтировать их над плитой и мойкой.
- При установке розеток около труб, они должны иметь крышки и резиновые уплотнители, что убережет их от влаги при прорыве.
На упаковках к розеткам производители указывают мощность, на которую они рассчитаны. Выпускаются изделия в 10А, на 2,2 кВт; 16А – на 3,5 кВт.
Перед монтажом розеток предварительно составляется схема их расположения, как на фото. От ее точности зависит удобство использования бытовых приборов на кухне, безопасность работы их и эстетика помещения.
Как лучше расположить розетки на кухне
Рассматриваем варианты розеток на кухне
Прежде чем думать о расположении
розеток на кухне, схеме и высоте, необходимо определиться с типом изделия.
Рассмотрим три варианта:
1.
Накладная розетка
Накладные розетки наиболее привычны и
просты в установке. Однако они очень бросаются в глаза, поэтому в современных
кухонных интерьерах встречаются все реже. Ещё один минус в том, что эти
элементы могут мешать перестановке мебели.

Перейдем к обсуждению преимуществ
накладных розеток:
• Их легко монтировать, не нарушая
целостность плитки и кухонных фартуков.
• Монтаж компонентов не всегда
требует штробления стен.
• Копии с перезаписью легко и быстро
восстанавливаются.
После снятия накладного изделия на
стене останется небольшое отверстие под саморез, которое легко замаскировать.
Поэтому, если вы планируете в ближайшее время пройти капитальный ремонт,
возможно, вы захотите выбрать этот тип розетки.

2.
Угловая розетка
Угловая розетка предназначена для
размещения между соседними поверхностями. Например, столешницы и стены, полы и
шкафы, стены. Изделие имеет эффектный внешний вид и отлично впишется в любой
интерьер.

Чаще всего такие модели изготавливаются
из качественного пластика, поэтому их корпуса хорошо выдерживают нагрузки. В
зависимости от конструкции угловые розетки бывают многомодульными, двойными или
одинарными. Они так же просты в установке, как и традиционные накладные
розетки.
3.
Скрытая розетки
Ещё один популярный тип розетки –
скрытая. Они также известны как встроенные, поворотные или телескопические. Они
имеют удобный, почти невидимый дизайн.
Чаще всего такие изделия встраиваются
в столешницы или мебельные фасады. Выдвижной экземпляр крепится на стенке
кухонного шкафа. В этом случае розетки представляют собой несколько отсеков в
одном корпусе.

Преимущества скрытых розеток:
• Эти розетки не занимают полезную
площадь. Их можно встраивать в любую поверхность: стены, столешницы, мебельные
панели и даже полы. Получите чистый дизайн без выступающих компонентов и
проводов.
• На основном корпусе устройства
имеются различные разъемы для подключения гаджетов. Например, плеер, телефон,
планшет. Вы можете заряжать свое устройство, не занимая отдельный отсек в
розетке.
• Скрытые розетки более безопасны,
чем потолочные. Предназначен для предотвращения попадания жидкостей и
предотвращения извивающихся детей.
Однако есть у этих продуктов и
недостатки. Во-первых, блоки со временем расшатываются, поэтому необходимо
периодически укреплять конструкцию. Второе неудобство – сложность подключения
устройств с боковыми штекерами. В этих случаях провода будут упираться в
столешницу или верхнюю крышку блока розеток.
Кстати, для фабрика “Кедр” для подобных целей производит прекрасные столешницы 38 мм. Они сделаны из очень прочного и влагостойкого материала. В такой столешнице легко сделать отверстие и установить розетки!
Выдвижные розетки
При наличии такой розетки, необходимость использовать удлинитель отпадает. Выдвижные модели встречаются любого положения. Отличаются повышенной стойкостью к пыли и влаге.

Розетки подобного типа особенно актуальны, когда в семье есть маленький ребенок. Потому что для него, они просто не доступны.


Скрытые розетки
Наилучший вариант для кухни. Установить модели данного типа можно непосредственно в столешницу или шкафчик, в любом положении.

Они оснащены пластиковыми блоками, которые надёжно защищают от попадания внутрь влаги и загрязнений.

Накладные розетки
Это стандартные модели, которые всем хорошо известны. Для их установки дробить стены нет смысла, а значит монтаж не повредит отделку стен, даже керамической плиткой
Накладные розетки не устойчивы к высокому напряжению, поэтому перед установкой важно рассчитать нагрузку

Оптимальным вариантом станет розетка с откидной крышкой, для защиты от влаги и пыли. Такие розетки, обычно заметны глазу, поэтому продумать нужно не только их расположение, но и дизайн.

Правила и нормы монтажа кухонных разъёмов
Для подключения крупной техники, потребуется наличие отдельных штекеров.
Важно следить за тем, чтобы общая мощность бытовой техники, подключенной к одному разъему соответствовала допустимым нормативам.
На кухонном фартуке разъёмы нужно располагать на высоте 15 сантиметров над уровнем столешницы.
Не следует располагать розетки над стиральной машинкой и другой крупной техникой, лучше всего монтировать их сбоку учитывая расстояние в двадцать сантиметров.
Для приборов с корпусом изготовленным из металла, необходимо предусмотреть заземление.

Самостоятельный монтаж
При наличии определенного желания, после детального изучения видеоматериалов в сети, а также действующих норм и правил вполне получится выполнить установку розеток своими руками. Работы рекомендуется выполнять с учетом следующего алгоритма действий:
- Составляется подробная схема.
- Указанные в проекте точки и линии переносятся на стены помещения.
- Бурятся отверстия под установку электромонтажных коробочек и делаются канавки для прокладки проводов (может потребоваться болгарка, перфоратор, фреза).
- Посредством гипса и пластикового крепежа производится фиксация подрозетников и кабелей к стене.
- Производится проверка проложенной линии и подключение коммуникаций к квартирному щиту.
Указанная технология является стандартной и может изменяться, в зависимости от различных факторов.
Штробы обычно заделываются штукатурной смесью и выполняются строго по вертикали для того, чтобы, например, при размещении шкафчиков можно было спрогнозировать их местонахождение. Длина выступающего конца кабеля должна быть не менее 10 см, что необходимо для нормального подключения фурнитуры. Установить розетку проще простого. Главное, придерживаться полярности и помнить про заземление.
Планируя размещение блока розеток, не стоит забывать о выборе правильного межосевого расстояния между соседними монтажными коробочками. Оно должно быть строго 71 см, поскольку, в противном случае, установить фурнитуру со стандартной общей рамкой не получится. В идеале, на каждую линию (группу линий) рекомендуется устанавливать устройство защитного отключения, что убережет вас и ваших домочадцев от поражения электрическим током в случае возникновения внештатных ситуаций.
При этом обесточивается вся техника, за исключением холодильника (возможно, также роутера, дежурного света и прочих потребителей, подсоединенных к отдельной, не отключаемой линии).

Кабель для электрической варочной панели: какая нужна проводка для подключения

Высота установки розеток и выключателей, правила и стандарты расположения

Разводка электрики на кухне своими руками: схема распределения и этапы монтажа

Можно ли ставить холодильник рядом с батареей отопления

Какие розетки лучше ставить в квартире: самые популярные электрические приборы с защитой от детей и без нее, какие лучше брать и чем они отличаются

Кабель для электроплиты и варочной панели — тип и сечение, обзор марок, рекомендации по подключению
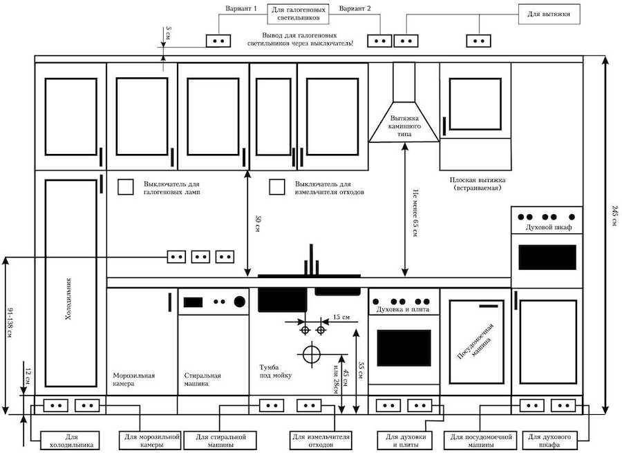
Какой должна быть высота розеток на кухне
Подробно разберем оптимальную высоту для каждого используемого электроприбора. При этом учитывается не только удобство, но и безопасность их использования. Немалую роль отыгрывает размер комплектного кабеля: чем он длиннее, тем большее пространство вариантов в итоге вы получаете.
Для вытяжки
Розетка размещается на верхнем уровне.
От потолка отступается минимум 15 см, от пола расстояние — от 190 см и выше. Более точно нужно определять ситуативно. В некоторых случаях, например, уместно вывести электроточку аккурат над верхними шкафчиками гарнитура.
Для варочной панели и духового шкафа
Для них вам понадобятся 2 розетки, каждая из которых будет питаться от своей линии.
Для духового шкафа приемлемая высота — 20 см от уровня пола. Хорошо подойдет вариант на 16А.
Плиту (или варочную панель) подключают к точке, которая располагается повыше — 65-70 см от пола. Ни в коем случае розетка не располагается в непосредственной от нее близости. Это противоречит нормам безопасности: нужно соблюдать расстояние 50 см — и размещать ее слева или справа на нужном уровне дальности.
Для холодильника
Этот стационарный бытовой электроприбор комплектуется шнуром на полтора метра, поэтому размещать розетку можно исходя из конкретных особенностей вашего помещения.
Точных рекомендаций нет, но учесть перманентное повышение влажности на кухне стоит. Отсюда и минимальное расстояние от пола — 20 см. На практике чаще всего можно увидеть высоту и более метра: в этом нет ничего зазорного, особенно если имеешь дело с целым блоком розеток, обеспечивающих доступ к сети сразу нескольким электроприборам.
Точно не следует устанавливать точку за холодильником. Это неудобно, если нужно экстренно отключить его от сети.
Для стиральной и посудомоечной машины
Не во всех кухнях есть стиральная машина, но если вмонтирована, то обязательно рядом с мойкой — именно в шкафчике рядом с ней и следует производить подключение к сети. Устанавливать розетку нужно на высоте от 20 см. И обязательно варианты с влагозащитой, чтобы исключить короткие замыкания и попадания брызг в отверстия.
Для посудомоечной машины свой рекомендуемый надпольный уровень — 70 см. При этом розетка должна быть слева либо справа от прибора и как можно дальше от установленных труб.
Можно ли запитать оба варианта техники от одной линии? Только в том случае, если мощность приборов не превышает 4 кВт. Понадобится отдельный автомат на 20А. При этом лучше всего не включать сразу оба прибора во избежание перегрузок в сети.
Для кофемашины
Обычно этот прибор находится на уровне глаз.
Оптимально, если выбираете встраиваемую конструкцию: в таком случае розетка устанавливается в нижнем шкафчике на расстоянии до 70 см от пола. Не забывайте про минимум в 20 см во избежание попадания влаги.
Для микроволновой печи
Все зависит от того, где находится у вас этот прибор.
Если располагается непосредственно на столешнице, то оптимально подключать его к розетке, встроенной в фартук. Она идет на высоте от 15 см.
В других случаях СВЧ-печь может покоиться на невысоком холодильнике или же быть и вовсе спрятана в шкафчик. В первом случае удобно сразу поставить сдвоенный блок и подключать ее вместе со стационарным бытовым прибором. А во втором уместно использовать скрытый вариант подключения.
Для мелких бытовых приборов
Это блендер, электрочайник, мультиварка и другая техника, которая обладает подвижностью и может легко передвигаться с места на место.
Лучше всего подключать ее к блоку на кухонном фартуке — он располагается на высоте 105 см от пола или минимум 5-10 см уровня столешницы.
Не стоит, конечно, включать все приборы одновременно. Особенно электрочайник в паре с другой техникой — нередки случаи ее поломки из-за скачков напряжения в сети.
И не стоит забывать про зарядку для телефона или планшета. Кажется, что такое редко когда пригодится, но жизнь вносит коррективы в любые хозяйские планы.
Для телевизора
Если приемник висит на углу, то можно воспользоваться угловой розеткой, а провода спрятать непосредственно за ТВ. Высота определяется положением самого телевизора — обычно это не выше 1,6-1,9 м от уровня пола.
В других случаях можно не выносить отдельную под приемник, а воспользоваться любой из ближайшего расположенного блока. Главное, чтобы хватило комплектного кабеля. Причем желательно иметь возможность аккуратно спрятать его для приятного и эстетичного вида.
Как правильно расположить розетки на кухне
После того, как точно определено необходимое количество разъемов, строят подробную схему с указанием всех отступов и размеров:
- Замеряем высоту, ширину и длину кухни.
- Схематически чертим каждую из стен, Должно получиться то, что в черчении называют «вид спереди».
- Дополняем чертеж схематическим изображением мебели и бытовой техники. При этом размер и масштаб строго соблюдаем.
- Отмечаем расположение электророзеток, сверяясь с планом, на котором определяли их количество.
Выстраивая схему размещения розеток на кухне с размерами и расстояниями, обязательно учитываем особенности их расположения и назначения. Разберемся с основными нюансами подключения.
Холодильник
Производители агрегатов рекомендуют запитывать их снизу, чтобы разъем не был заметен. Это хорошо для оборудования, которое не планируется часто отключать.
Instagram jatijudesign
Для оборудования, к вилке которого не требуется постоянный доступ розеточный блок устанавливается на высоте порядка 10 см от пола или выше. Если свободный доступ необходим, оптимально смонтировать конструкцию в районе рабочей зоны.
Вытяжка
Оборудование подключают на высоте 1,8-2,1 м от пола. Проще всего сделать это без вилки, подсоединив выведенный кабель непосредственно к устройству. Это оптимальный вариант для недорогих моделей. Однако так можно сделать не всегда. К примеру, срезать вилку с дорогостоящей техники не нужно. В этом случае гарантия будет потеряна, что очень нежелательно.
Духовой шкаф и варочная панель
Мощные варочные панели подключаются через специальную силовую электророзетку. Возможен вариант, когда вывод кабеля соединяется напрямую с контактными клеммами панели. Духовки, в отличие от них, не нуждаются в специальном оборудовании. Оптимально устанавливать разъемы для подключения в соседнюю тумбу гарнитура. При условии, что она имеет распашную дверцу. Если это невозможно, размещают блок снизу, на небольшом расстоянии от пола.
Посудомойка и стиральная машина
Правила запрещают устанавливать электророзетки за корпусом этой техники. Ее работа связана с использованием воды, что при утечке может создать серьезную аварийную ситуацию. Лучше всего установить электротехнический блок во влагозащищенном корпусе слева/справа от агрегата. Если есть такая возможность, можно спрятать его в мебельной тумбе.
Рабочая зона
Характеризуется наличием большого количества разъемов. Их должно быть как минимум по два с каждого края стены. Высота розеток над столешницей на кухне может быть любой, но не ниже, чем 10-25 см от покрытия. Нужно так разместить блоки, чтобы они были максимально защищены от влаги и раскаленных капель готовящейся пищи. Для размещения в непосредственной близости от мойки либо плиты лучше выбирать изделия в корпусах с повышенной защитой.
Кухонный фартук выполняет не только защитную, но и декоративную функцию, и большое количество электророзеток может испортить его внешний вид. Поэтому можно подобрать скрытые модели, которые функциональны и незаметны.
Instagram kuxdvor
Виды кухонных розеток
На первый взгляд может показаться, что размещение розеток на кухне простое дело, но на деле приходится учитывать множество нюансов.

Выполнив все необходимые расчеты, казалось бы, можно приступить к монтажу электрических разъёмов. Но не стоит торопиться, ведь каждая розетка имеет свое назначение, а значит и монтироваться будет особым способом.

В простом и привычном понимании, розетка – это пластиковая крышка с несколькими токоприемниками для подведения проводов. Однако и здесь, без дизайнерских решений не обходится. Оптимальной будет розетка, которая удобна и доступна в использовании, но при этом незаметна для глаз.

Угловые розетки на кухне
Это наиболее практичный вариант, идеально подходящий для кухни. Производится устройство из прочного пластика, что гарантирует длительный срок службы. Распродают подобные розетки на стыках мебели, между столешницей и поверхностью стены и в прочих общедоступных, но не заметных местах.

Угловые розетки оснащены несколькими модулями. И, если для монтажа выбран именно этот вид, то следует учитывать такие характеристики:
- Тип монтажа. Такая розетка не является встраиваемой, а значит устройство не получится вмонтировать в стену.
- Мощность розетки. При небольшом количестве бытовой техники подойдёт 16А, однако большей надежностью отличаются розетки 25-32А.
- Защита от влаги. Для помещения с повышенной влажностью, коем и является кухня, оптимальным решением станут влагозащищенные модели IP44 – IP55.


Размещают разъём на расстояние двадцати сантиметров сбоку от техники. Также стоит учесть расстояние от штекера до прибора, оно не должно превышать одного метра.

Обзор производителей
Важным критерием при выборе устройства является производитель. Производитель должен быть проверен и подтвержден.
Самые известные и надежные компании:
Kondator — шведская компания, которая производит вертикальные скрытые трехмодульные ответвительные розетки в алюминиевом корпусе. Такие изделия могут иметь разъемы VGA, USB и порты для подключения к Интернету и передачи данных.
Global Technology Vision (GTV) является польским дистрибьютором, широко представленным в Азии и Европе. Блоки с тремя розетками, поставляемые компанией, доступны в черном и серебристом цвете
Удлинители снабжены защитными кожухами из огнеупорного полимера, что очень важно, если розетка установлена возле плиты. Корпус внутри гнезда выполнен из алюминиевого сплава, что увеличивает долговечность конструкции.
Немецкая компания Schulte Elektrotechnik производит электротехническое оборудование под брендом EVOline
Их встроенные розетки представляют собой модульные конструкции, значительно расширяющие функционал гаджета за счет подключения дополнительных устройств.
Испанский производитель Simon Connect выпускает универсальные устройства с интересным современным дизайном. Разнообразие форм позволяет подобрать гаджет под любой интерьер.
Французский производитель Legrand поставляет скрытые розетки со сменными корпусами популярных цветов (черный, металл, белый, золото, серебро), состоящими из нескольких модулей.
BachMann — немецкая компания, производящая качественные и дорогие технические устройства.
Выбирая скрытую торговую точку от одной из перечисленных компаний, вы можете не переживать за качество и работоспособность продукции.
Правила электроснабжения кухни
Основные принципы пользования кухонной техникой – удобство и безопасность. Поэтому, чтобы вас не било током, чтобы для установки микроволновки не пришлось штробить уже отделанные стены, чтобы бытовые приборы не ломались из-за неправильного подключения, нужно знать требования к размещению и выбору розеток. И учитывать их при планировке пространства, расстановке мебели.
Чего делать нельзя
В нормативных документах четко расписано, каким должно быть расположение розеток на кухне, схема и высота их над полом и столешницей определяется в соответствии с этими требованиями. Но в этих документах прописаны и запреты, которые люди часто игнорируют, особенно если не хотят связываться с серьезным ремонтом и переделкой электропроводки перед обустройством новой кухни.
Некоторые ограничения на условия эксплуатации кухонной бытовой техники накладывают и их производители. Одно из них – недопущение подключения прибора к сети через сетевой разветвитель или удлинитель.

Включать несколько приборов в одну розетку через разветвитель нельзяИсточник idea-potolkov.ru
Такой запрет связан с увеличением нагрузки на электрическую сеть, которая может стать причиной короткого замыкания и даже пожара. А провода удлинителей не только придают помещению неряшливый вид, но и мешают уборке, создают травмоопасные ситуации.
Поэтому для кухни действует строгое правило: каждый электроприбор должен иметь свою индивидуальную точку подключения к сети.
Если же говорить о других запретах и ограничениях, то нужно запомнить следующие:
- розетки нельзя размещать под кухонной мойкой или над ней, так как при контакте с водой в случае поломки смесителя или протечки возможно короткое замыкание;
- высота розеток над столешницей не регламентируется, но расстояние от них до мокрой зоны (мойки) должно быть не менее 20-30 см;
- те же требования следует соблюдать и по отношению к плите или варочной поверхности для защиты розеток от брызг воды и жира;

Пользоваться этими розетками неудобно и небезопасноИсточник pro-dachnikov.com
- нельзя устанавливать розетки под стиральной или посудомоечной машиной, точку подключения стоит подбирать над ними или сбоку в соседнем шкафчике в пределах длины питающего шнура;
- розетки в рабочей зоне для подключения мелкой кухонной техники нельзя компоновать большими группами, максимум – по 4-5 штук, причем каждая группа должна подключаться к выделенной линии с устройством защитного отключения (УЗО).
Как выбирать розетки
Если следовать правилам, нет никакой необходимости выбирать для кухни розетки с высокой степенью защиты от влаги. Достаточно, если внутренняя часть изделий будет керамической, а внешняя панель гладкой для простоты очищения от жира и других кухонных загрязнений.

Розетка с керамическим механизмомИсточник ozone.ru
Эти электроустановочные изделия бывают накладными, встраиваемыми и модульными, и подбираются в зависимости от материала стен, условий монтажа, стиля интерьера, вида подключаемой техники.
Накладные розетки.
Монтируются на поверхности стены, поэтому их корпус выступает за её плоскость и может мешать установке мебели. Используются преимущественно внутри шкафов, а также в тех случаях, когда нет возможности штробить стены для прокладки проводов и разрабатывать отверстия в них.

Накладные розетки с открытой проводкой уместны в ретро-интерьерахИсточник werkel-kupit.ru
Самый распространенный вид розеток на кухне для встраиваемой техники: лицевая панель располагается почти вровень с поверхностью стены и не мешает нормальной установке оборудования. Вписывается в любой интерьер, но отличается сложностью монтажа с устройством в стенах отверстий для заглубления рабочей части розетки.
Модульные розетки.
Бывают угловыми и выдвижными. Первые представляют собой треугольный в сечении блок, монтируемый в угол стен, между стеной и столешницей, стеной и навесными шкафчиками.

Угловой модульИсточник youorder.de
Выдвижной модуль прячется в шкафчик или столешницу и достается при необходимости.

Выдвижной модуль в столешницеИсточник trinitymebel.ru





































