Виды туалетов для дачи
Выбирая конструкцию для того, чтобы построить туалет на даче своими руками, ориентируются, в первую очередь, на комфорт использования постройки. Причем удобным должно быть не только посещение туалета, но и его обслуживание. Для того, чтобы сделать правильный выбор, следует ознакомиться с особенностями работы каждого из вариантов туалетов.
Туалеты с выгребными ямами
Самый простой вариант утилизации отходов – яма для туалета на даче своими руками. Над ней устанавливают домик, в обиходе часто называемый, в зависимости от внешнего вида, «скворечником» или «шалашом», степень комфорта которого зависит от возможностей мастера. Очищается яма при помощи ассенизаторской машины. Подобные конструкции – не самые совершенные, но из-за простоты устройства и экономичности они остаются популярными и востребованными, если речь идет о загородных участках, на которых владельцы появляются не часто. Туалеты с выгребными ямами подходят и для дач, на которых проживает небольшое количество человек.
На фото схема устройства туалета над выгребной ямой
Люфт-клозеты
Люфт-клозет представляет собой усовершенствованную конструкцию туалета с выгребной ямой, отличительной особенностью ее является полная герметичность накопителя. Люфт-клозет может устраиваться таким образом, чтобы унитаз находился в отапливаемом помещении (доме), а накопитель – за его пределами (как правило, у стены, прилегающей к туалету). Унитаз с накопителем соединяется наклонной или вертикальной трубой, по которой отходы самотеком поступают в резервуар. Очистка накопителя люфт-клозета из-за герметичности может осуществляться только при помощи ассенизаторов. Люфт-клозет более удобен и гигиеничен, чем обычный туалет на даче с выгребной ямой.
При обустройстве люфт-клозета унитаз находится в помещении, что является преимущество данного вида конструкции
Пудр-клозеты
Пудр-клозеты отлично подходят в тех случаях, когда на участке близко к поверхности находятся грунтовые воды. Такая особенность может стать причиной неприятностей при установке других конструкций, но никак не повлияет на работу пудр-клозета. Существенным преимуществом такого варианта дачного туалета является и возможность с минимальными затратами превращать отходы жизнедеятельности в экологичное органическое удобрение. Пудр-клозет получил свое название от принципа действия – отходы в накопителе присыпаются («припудриваются») сухим составом (торфом или торфяно-опилочной смесью). В результате предотвращается возникновение гнилостных процессов, минимизируется вероятность появления неприятных запахов. Отходы, пересыпанные торфом, по мере наполнения резервуара туалета выгружаются в компостную яму, где они превращаются в компост.
Пример самодельного дачного пудр-клозета
Пудр-клозеты могут быть стационарными с объемными накопителями или компактными переносными. Во втором случае малогабаритная конструкция может заноситься в дом в ночное время или во время дождя.
Для удобства транспортировки отходов до компостной кучи емкость можно дополнительно оснастить колесами и ручками
Биотуалеты
Ставшие популярными биотуалеты, представляющие из себя готовый компактный унитаз, действительно хорошо зарекомендовали себя в процессе эксплуатации. Их принцип действия может быть аналогичен работе торфяного пудр-клозета. Переработка и разложение отходов в таких торфяных биотуалетах происходит с помощью торфяной смеси.
В других моделях для переработки возможно использование биопрепаратов. В состав сухих или жидких наполнителей входят культуры определенных видов бактерий.
Торфяной биотуалет подойдет как для дачи так и для частного дома
В химических моделях активные вещества для разложения отходов представляют собой химические препараты. При выборе следует учитывать, что безопасные и эффективные наполнители стоят дороже остальных, а некоторые используемые неосведомленными дачниками вещества (хлорная известь, формальдегид и пр.) запрещены из-за токсичности.
Читайте в отдельной статье: Как выбрать домашний биотуалет.
Строительство туалета с выгребной ямой
Если вы строите такой туалет для дачи своими руками — пошаговая инструкция начинается с устройства накопителя.
Рытье котлована. Его объем обычно рассчитывается, исходя из условий использования (количество людей, периодичность и длительность посещений дачного участка и пр.). Обычно котлована глубиной 2 метров бывает вполне достаточно. Сечение такой ямы – квадрат со сторонами в 1 метр или круг диаметром один метр. Эти параметры можно немного увеличить с учетом необходимости укрепления стен ямы.
Выполнение дна. Самым простым способом может стать засыпка дна щебнем или гравием. Однако такой способ не исключает частичного проникновения отходов из туалета в почву. Если грунтовые воды расположены на участке близко к поверхности земли, дно лучше выполнить непроницаемым, например, залив его бетонным раствором.
Укрепление стен. Укрепить стены выгребной ямы под туалет на даче своими руками можно кирпичной кладкой, бетонными кольцами или бетонным раствором, используя технологию заливного строительства (раствор постепенно, не более 50 см в высоту за раз, заливается в опалубку)
Во всех случаях важно обеспечить герметичность конструкции (заполнить швы между кольцами, избегать пропусков при выполнении кирпичной кладки). Для защиты поверхностных вод на участке от попадания в них нечистот стены можно оштукатурить или покрыть гидроизоляционным слоем для большей надежности.
После этого над ямой воздвигают выбранную конструкции домика. Чаще всего в таких случаях устраивается деревянная конструкция.
Схема деревянного туалета
Строительство деревянного домика пошагово
- Разметка прямоугольника будущего домика на местности и обустройство столбчатого фундамента. Для этого в отмеченных углах строят из кирпича опорные столбы, которые впоследствии покрывают гидроизоляционным материалом (например, рубероидом).
- Подготовка деревянных балок для каркаса: раскрой, грунтовка (возможно, с предварительной пропиткой противогнилостными составами), покраска. Тщательная подготовка деревянных элементов конструкции защитит их от влаги и продлит срок службы постройки.
- Сборка рамы и установка ее на фундаментные столбы.
- Установка на раму с помощью металлических пластин и болтов вертикальных опор. Положение каждой из них необходимо проверить уровнем перед тем, как выполнить жесткое крепление.
- Монтаж дверных вертикальных стоек с проверкой уровнем.
- Монтаж балок для крыши.
Установка дополнительных вертикальных балок между опорами для удобства обшивки (при необходимости).
- Обустройство кровли туалета – настил рубероида и установка шифера, профнастила или другого кровельного покрытия.
- Наружная обшивка каркаса (материалом для этих целей могут служить доски или вагонка). Оптимальный шаг при обшивке досками – 15 см.
- Обшивка каркаса изнутри.
- Установка подиума-сидения с вырезанным отверстием. Для этих целей внутри домика над ямой собирается еще одна каркасная конструкция соответствующей формы.
- Сборка и навешивание двери.
- Подведение электропроводки и установка светильника и выключателя для удобства посещения туалета в сумерках или ночью.
- Выполнение отверстия над дверным полотном для естественного освещения днем.
- Установка сидения с плотно прилегающей крышкой на подиуме. Закрытая крышка снизит вероятность появления неприятных запахов.
При постройке туалета на даче выгребная яма может выходить за его пределы с задней стороны и оснащаться крышкой для удобства очистки
Вентиляция туалета
Несмотря на то, что правильное устройство дачного туалета своими руками позволяет минимизировать появление неприятного запаха, а многие модели исключают возникновение гнилостных процессов в массе отходов, туалет на даче, сделанный с выгребной ямой, или другая конструкция должны обеспечиваться вентиляцией.
Вентиляционная труба заводится в накопитель не менее, чем на 15 см. Для этих целей хорошо подходят легкие и прочные пластиковые канализационные трубы диаметром 100 мм. Для устойчивости их крепят с наружной стороны на стене строения при помощи металлических хомутов. Вентиляционная труба должна возвышаться над крышей примерно на 50 см. Защита вентиляционной трубы от дождя и мусора происходит при помощи установленного на конце трубы дефлектора.
Строительство люфт-клозета
Если вы решаете вопрос, как построить на даче туалет самому, люфт-клозет стоит рассматривать, как один из оптимальных вариантов. Он весьма прост в исполнении и не требует значительных расходов. В то же время такие конструкции более комфортны, чем обычные «скворечники» с ямами.
Прежде всего важно выбрать место для земляных работ. Яма для отходов в отличие от многих других конструкций выполняется непосредственно рядом с домом, поскольку унитаз, из которого будут поступать стоки, будет находиться внутри дома
Итак, требуется обозначить место для туалета внутри помещения и место для накопителя у прилегающей стены. Глубина ямы должна быть не менее, чем 1 метр, причем ее стены должны быть полностью гидроизолированы. Специалисты рекомендуют делать дно и стены резервуара из заливного бетона с последующим покрытием набравшей прочность конструкции гидроизоляционным слоем (например, битумом). Повысить надежность гидроизоляции можно с помощью глиняного замка (толщина прослойки – не менее 0,5 м).
Верхняя часть ямы туалета закрывается двойной крышкой – между слоями чугуна и дерева устанавливается слой теплоизолятора. Самотек отходов может обеспечиваться наклоном трубы, которая ведет из унитаза в накопитель (в этом случае на этапе строительства необходимо предусмотреть для нее входное отверстие, а после ввода герметизировать шов) или конструкцией самого резервуара (расширяющаяся яма с заходом под дом по направлению от туалета на улицу с наклонным полом). Для люфт-клозета необходима вентиляция. В холодное время года эффективность вытяжки может обеспечиваться разностью температур, а в летнее время лучше использовать вытяжной вентилятор.
Схема люфт-клозета
Советы и рекомендации по уходу
Любой системе необходима своевременная очистка. Если вовремя не удалить из выгребной ямы отходы, то процесс размножения вредоносных бактерий негативно отразится на состоянии почвы. Застои отходов образуют ядовитые газы, которые способны нанести вред здоровью. Чем больше газовых масс скапливается, тем сложнее их удалить.
Обработка ямы и устранение отходов может быть осуществлено различными способами. Самым легким и проверенным является вызов ассенизаторской машины. Загрязненная жидкость откачивается при помощи шлангов. Данная услуга стоит дорого, и ее применяют лишь в том случае, когда колодец заполняется на две трети объема, и биологические препараты не способны переработать нечистоты.
Очистка химическими препаратами эффективна, но не желательна. Быстродействующие реактивы работают даже в условиях пониженной температуры. Но не каждый такой состав отличается экологичностью. Переработанную субстанцию категорически запрещено сливать в почву, поэтому возникает необходимость вызова откачивающей машины.
Биопрепараты отличаются от химических аналогов безопасностью использования. Чистка этими составами получила широкое применение у владельцев дачных участков. Микроорганизмы плохо работают в условиях низких температур, поэтому их используют преимущественно в летний период времени.
Механическая очистка котлована является традиционным способом устранения нечистот. Эту работу проводят не реже раза в год, процедура весьма неприятна. Такая очистка позволяет экономить деньги, но требует затрат сил и времени.
При выборе биологических очистительных средств важно правильно рассчитать дозу. Численность полезных бактерий должна быть достаточной, чтобы восстановить микрофлору в резервуаре
Биологические добавки различают по скорости процесса очищения, быстроте действия и способности устранения запахов. Перед применением препарата необходимо ознакомиться с отзывами о материале.
Состав биопрепаратов задает условия его использования. Аэробные бактерии способны переработать отходы только под воздействием кислорода. Анаэробным аналогам прямой доступ воздуха не нужен, поэтому их спокойно помещают в вакуумные резервуары.
Дачный туалет из кирпича
Если вы планируете пользоваться дачным туалетом на протяжении многих лет, да ещё и желаете хорошенько утеплить его, то есть смысл отказаться от древесины и использовать более долговечный материал – кирпич. Да, времени и сил на строительство своими руками уйдет больше. Зато и результат не разочарует.
Для работы потребуются такие материалы, как:
- бетон,
- дверь,
- кирпичи,
- брус сечением 30×30-40×40 мм,
- кровельный материал (шифер, ондулин, черепица, рубероид или любой другой).
Когда всё необходимое есть под рукой, следует изучить чертежи и фото, после чего начинать строить подходящий туалет своими руками.
В первую очередь обустраивается выгребная яма. Как сделать её расскажем чуть позже. После завершения этой работы необходимо позаботиться о фундаменте. Ведь кирпичный туалет весит немало, поэтому без надежного основания тут никак не обойтись.
По периметру будущего туалета выкапывается траншея глубиной в 40-50 см и шириной примерно на 10-15 см больше ширины стен самой постройки. На дно засыпается песок. Он выравнивается и обильно увлажняется. Сюда же устанавливается опалубка (использовать можно фанеры, прямой шифер, доски, горбыль или любой другой материал). На пучинистом грунте фундамент придется армировать. Сделать это несложно – достаточно связать простейший каркас из четырех прутов арматуры и установить в опалубку. Затем туда же заливается бетон. Нужно дать ему набрать твердость хотя бы пару недель, после чего можно приступать к строительству дачного туалета из кирпича.
На бетонное основание укладывается раствор, который тщательно выравнивается, а поверх него устанавливают кирпичи
Важно проверить, чтобы первый ряд был ровным – желательно использовать уровень. Даже небольшие погрешности могут привести к тому, что каждый следующий ряд будет более неровным
Оптимальный размер туалета – от 120×120 до 140×140 см при высоте 200-220 см.
Когда первый ряд кирпичей уложен, на краях натягивается тонкая, прочная нить – это облегчит укладку следующих рядов, позволяя выравнивать каждый камень.
При укладке не стоит забывать про дверной проем – его размер должен быть около 180-200 см высотой и 60-80 см шириной. На противоположной стене желательно оставить небольшие окошки для вентиляции. Впоследствии их можно застеклить или же просто оставить такими же.
Крышу лучше сделать односкатной. На кирпичный каркас укладывается обрешетка из бруса. Если используется шифер или черепица, то материал укладывается на брус. При использовании рубероида или ондулина, на брус укладывается лист фанеры, а кровля монтируется поверх него.
Садовый туалет из кирпича построен, причем своими руками, без привлечения специалистов!
Видео
Требования к туалетам на даче
Чтобы туалет на даче стал не только красивым и комфортным местом, но и соответствовал нормам и требованиям, перед его установкой необходимо учесть СНиПы и СанПиНы.
Строительные нормы и правила, которые регламентируют требования к туалетам на даче, изложены в № 30-02-97 в двух пунктах:
- Пункт 8.7 СНиП – если нет центральной канализации, то на участках можно пользоваться биотуалетами и пудр-клозетами. Также не запрещается установка выгребных устройств (люфт-клозет) и надворных уборных на даче.
- Пункт 8.8 СНиП – сбор и сброс отходов жизнедеятельности возможен в дренажированной траншее, не ближе 4 м от соседнего забора, либо, с разрешения СЭС, по организованной канаве в наружный ров.
Этот же СНиП объясняет значение терминов различных дачных туалетов:
- биотуалет – система переработки отходов жизнедеятельности за счет окисления при подогреве или химической обработке в органическое удобрение;
- люфт-клозет – туалет с люфт-вентиляцией в доме, фекалии при смыве через трубу проходят в наружный выгребной люк;
- пудр-клозет – туалет на даче, где продукты жизнедеятельности обрабатывают торфом или порошком и хранят в сыпучем виде в изолированном ящике до полного компостирования;
- надворная уборная – легковесная постройка над выгребом.
Эти нормы едины для дачных участков всей страны, но в каждом регионе из-за климатических и рельефных особенностей налажена своя система контроля, с которой необходимо согласовывать действия при установке туалета на участке.
Внимание! При установке туалета на даче необходимо помнить, что запрещено ставить люфт – клозеты в 4-м климатическом и 3-м «Б» подрайоне.
Помимо СНиПов безопасность и экологичность туалетов на даче регламентируют санитарные правила 42-128-4690-88, за несоблюдение которых дачник может быть оштрафован до 5 тысяч рублей. Основные моменты, которые изложены в этом параграфе, сводятся к следующему:
- обязательная герметичность выгребного места;
- 3 м – максимальная глубина выгреба;
- нельзя допускать контакта выгребного места с подземными водами;
- чистка выгреба не реже раза в 6 месяцев (или, не доходя до 350 мм заполнения емкости);
- обязательны к применению все стадии очистки воды из септиков.
Соблюдение этих требований избавит хозяина дачного участка от штрафов и возможных неприятных тяжб с соседями и муниципальными службами.
Виды дачных туалетов
Какой туалет сделать на даче? Условно уличные уборные можно разделить на два вида: с выгребной ямой и без нее. Без выгребной ямы работают биотуалеты и пудр-клозеты.
Современные конструкторы разработали много моделей биотуалетов для уличного пользования, в которых сточная яма отсутствует. А что лучше — биотуалет или традиционная выгребная яма? Сточная выгребная яма — самый обычный и дешевый способ для реализации уличного сан узла. Установка и обслуживание биотуалета обойдется не дешево, но иногда без него не обойтись.

Виды дачных туалетных домиков
В каких случаях нельзя устанавливать уборную с выгребной ямой:
- Если грунт сланцевый или известняковый
- Если уровень грунтовых вод высокий
- Если количество проживающих и гостей велико
Каким сделать дачный туалет? Чтобы определиться с выбором самого удачного санитарно-бытового строения, нужно учитывать особенности каждой конструкции. Так, уборные различаются по способу сбора и утилизации отходов:
- Биотуалет
- Пудр-клозет
- Люфт-клозет
- С выгребной ямой
Пудр-клозет является альтернативой биотуалету устанавливается без выгребной ямы: вместо нее помещают емкость для сбора нечистот, которая периодически очищается вручную. Растворение стоков происходит за счет торфяника, один килограмм которого способен переработать до 10 литров нечистот, комбинируя их в полезное удобрение.
Смотрим видео, различные виды дачных клозетов:
Люфт-клозет — это сочетание домашней сан узла с выгребной ямой. Если желаете установить уборную подобной конструкции, вы должны заранее позаботиться о возможности вычищения ее с помощью ассенизаторской машины. Если такой возможности нет, то люфт-клозет устанавливать нельзя.
Простота работы уборной со сточной ямой является преимуществом перед устройством без установки стока. Вам не нужно будет заботиться о периодическом очищении накопившихся фекалий, не нужно тратиться на обслуживание уборной и закупать специальные растворители и поглотители. Выгребную яму можно сделать самостоятельно, и установить над ней домик для туалета.
Чертеж дачного туалета из кирпича: правила кладки
Создание чертежа дачного туалета из кирпича начинается с подробного планирования и учета всех деталей. Вам потребуется:
- Сначала определите общие размеры вашего туалета. Стандартные размеры составляют около 1 метра в ширину, 1-1,2 метра в глубину и 2-2,5 метра в высоту.
- Затем на чертеже отметьте размещение туалетного отверстия и высоту его расположения от пола. Обычно это около 40-45 см.
- Правила кладки кирпича предполагают чередование швов в вертикальной плоскости, то есть следующий ряд кирпичей смещается относительно предыдущего. Это придает прочность всей структуре.
- Не забудьте учесть в чертеже расположение двери и, при необходимости, окон. Дверь обычно делают высотой около 1,8-2 метров и шириной около 70-80 см.
- Подумайте о проветривании: для этого можно предусмотреть вентиляционные отверстия или трубу в верхней части туалета.

Автономная канализация для дачи своими руками
Если вы решили соорудить септик собственными силами, то это позволит сэкономить вам немало средств и не отнимет слишком много времени.
- надежны,
- долговечны,
- имеют гарантию,
- но обладают достаточно высокой стоимостью.
Монтаж готовых систем осуществляют специально обученные рабочие.
Работы по самостоятельному сооружению септика начинают с выбора места для изготовления котлована и траектории прокладки труб.
При выборе размера септика необходимо учитывать, сколько человек проживает в доме и каким количеством сантехоборудования они пользуются. Для семьи из трех человек достаточно емкости 1000 л. Если предполагается эффективная качественная очистка отходов, то септик придется сооружать 2-х или 3-камерным, с дополнительным сооружением дренажного колодца. Такая схема канализации на даче позволяет на выходе получать практически чистую воду, которая не навредит ни посевам, ни источнику питьевой воды, находящемуся на участке.
Двухкамерный септик с дренажным колодцем
При ступенчатой очистке крупные твердые отходы отфильтровываются, затем благодаря бактериям происходит их брожение, окончательная очистка стоков осуществляется с помощью щебня и гравия.
Величина котлована, который необходимо выкопать, зависит от типа септика:
- Системы канализации для дачи с использованием еврокубов не требуют устройства слишком глубоких траншей – примерно до 3 метров.
- Если септик будет изготавливаться из бетонных колец, то изготавливают котлован глубиной 4-5 метров.
Установка канализации на даче может начинаться только после определения, на каком уровне находятся грунтовые воды. От этого зависит тип емкости для септика. Например, для бетонных колец наличие высоких грунтовых вод недопустимо. В этом случае можно использовать пластиковые емкости, но только при условии, что глубина промерзания грунта не велика.
Для получения герметичного дна наиболее часто используют цементную заливку.
Устройство канализации на дачном участке с использованием еврокуба
Наиболее простым вариантом устройства септика является использование еврокуба. Еврокуб – это многослойная полиэтиленовая емкость с каркасом из оцинкованной стали, обеспечивающим прочность конструкции.
Установленные в траншею емкости соединяются между собой трубами, что обеспечивает многоступенчатость очистки сточных вод. Заведенные в еврокубы трубы закрепляют герметиком или шайбами, резиновыми уплотнительными кольцами.
Вверху предусматривается отверстие для вентиляционной трубы.
Еврокубы необходимо снаружи утеплить и укрепить для предотвращения их повреждения из-за сдавливания грунтом. Для утепления используют листы пенопласта, а для укрепления – бетонирование боковых стенок. Сверху и с боков емкости засыпают песком или грунтом, закрывая септик.
Устройство дачной канализации при помощи бетонных колец
Сооружение септика из бетонных колец – процесс аналогичный предыдущему, но требующий более значительных материальных и временных затрат.
Главная сложность установки бетонных колец заключается в их значительном весе, который может колебаться от 300 до 700 кг, в зависимости от диаметра колец и толщины их стенки. Самостоятельно осуществить такую операцию невозможно, поэтому требуется привлечение тяжелой строительной техники.
После подготовки дна котлована можно начинать опускать в него кольца. Стыки между элементами септика герметизируют цементным раствором.
Для первого отстойника устанавливают 4-5 колец, для второго – достаточно 3-4. В кольцах должны изготавливаться отверстия для монтажа переливных труб. Целесообразно покупать кольца с готовыми отверстиями, поскольку их самостоятельное изготовление может привести к крошению бетона и повреждению арматуры.
В данном случае для герметизации соединений колец с трубами лучше всего использовать цементный раствор, имеющий хорошее сцепление с бетоном. Если второй колодец исполняет роль дренажного сооружения, то он устанавливается не на цементную подготовку, а на подсыпку из щебня, гравия, керамзита. Эта засыпка фильтрует перебродившие отходы, поступившие из первого отстойника.
Для более эффективного просачивания воды в грунт нижнее кольцо должно быть перфорировано несколькими десятками отверстий.
После завершения монтажных работ первый колодец закрывается герметичной крышкой, а во втором колодце в крышке предусматривается отверстие для вентиляционной трубы.
Изготовление своими руками крыши уличного туалета
И последний этап строительства нашего WC – изготовление временной (или постоянной и очень дешевой) крыши. Рассмотрим этот вариант пошагово.
ШАГ 1: отпиливаем доски. Нам нужен размер с напусками по 20 сантиметров, не больше, чтобы не срывало ветром.
ШАГ 2: привинчиваем доски саморезами. По 2 самореза на 1 сторону будет достаточно.
ШАГ 3: натягиваем и крепим пленку. 200 микрон в 2 слоя, напуски на стены и доски по 15-20 сантиметров, все закручивается саморезами и мягкими резиновыми шайбами.
Мы показали, как построить уличный туалет и фото сделаны были именно с «чернового варианта», далее на этом санузле будет поклеена битумная крыша, аналогично такой же, которая делалась на доме и заборе. О недостатках битумной черепицы и ее преимуществах вы можете почитать в другой нашей статье про битумку и выбрать для себя оптимальный вариант кровли. Но я все же советую делать все в одном стиле и потратить больше времени на укладку битумной черепицы для получения лучшего результата.
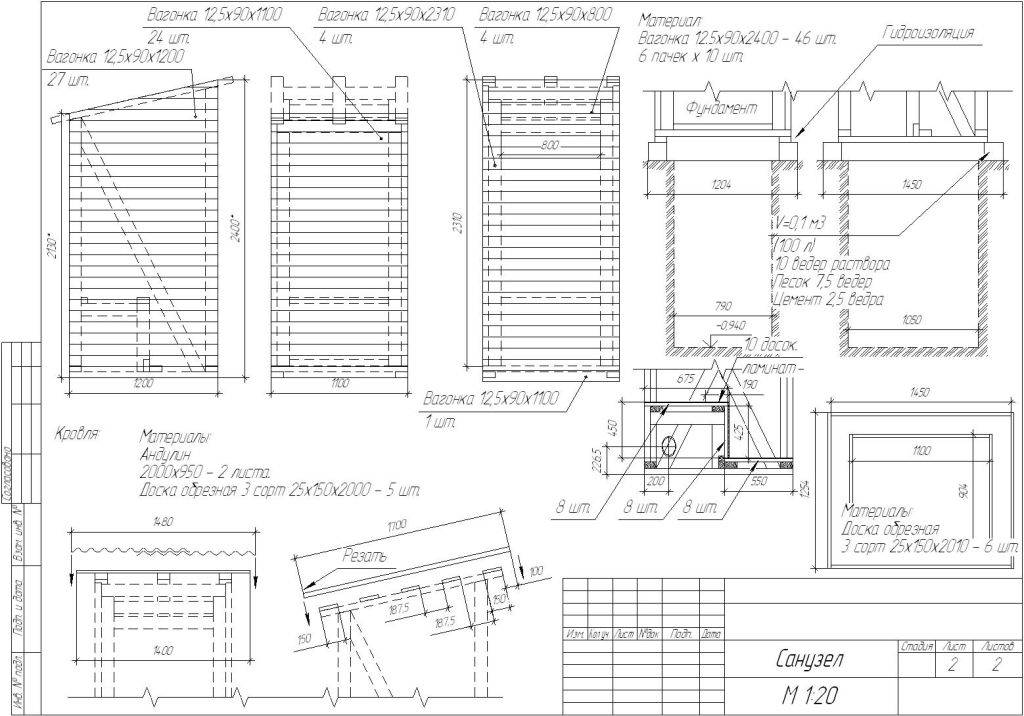
Как построить дачный туалет с выгребной ямой своими руками: размеры, чертежи, инструкция по изготовлению
Туалет с выгребной ямой – этот вариант для дачи нам более привычный. Расскажем подробнее, как правильно его построить, рассмотрим все этапы работы.
Что понадобится для работы
Перед тем, как сделать уличный туалет, нужно подготовить:
- обрезную доску;
- металлическую бочку для ямы;
- цементно-песчаные блоки 25×18×19 см в качестве основания;
- брус 40×60 мм;
- уголки, саморезы;
- гидроизоляцию;
- строительный уровень;
- профнастил;
- отработанное масло.
Устройство выгребной ямы для туалета на даче
Возведение туалета на даче своими руками начинается с выгребной ямы, каждый владелец самостоятельно выбирает более удобный для себя вариант.
| Иллюстрация | Описание действия |
ФОТО: smartremstroy.ru | Из автомобильных покрышек. Нужно подобрать несколько шин одинакового диаметра и выкопать яму немного большего размера. На дно можно засыпать слой гравия, а простенок заполнить галькой и битым кирпичом |
ФОТО: masterhost.ru | Из кирпича. Предварительно нужно выкопать яму 1×1 м² или 1,5×1,5 м², дно также можно забетонировать или засыпать слоем гальки |
ФОТО: agronomu.com | Установить пластиковый резервуар, присыпать грунтом, сверху поставить туалет |
ФОТО: kanalizaciya-stroy.ru | Установить бетонные кольца, для их монтажа потребуется привлечение крана |
ФОТО: strojdvor.ru | Залить монолитную конструкцию |
Дачный туалет своими руками: пошаговая инструкция от а до я
Предлагаем своими руками построить небольшой и очень простой дачный туалет со скатной крышей. Пошаговые фотоописания помогут в работе.
| Иллюстрация | Описание действия |
| Сделать разметку на земле по диаметру бочки и выкопать яму. Из бочки удалить дно и верх, установить её в яме и выполнить обсыпку грунтом | |
| Залить цементно-песчаным раствором пустоты | |
| Для нижней обвязки взять доску 100×50 мм и соединить её монтажными уголками. Обязательно проверить диагонали | |
| Укрепить конструкцию саморезами с наружной стороны | |
| Покрыть доски отработанным машинным маслом, которое предупредит гниение древесины, кроме того, оно обладает водоотталкивающими свойствами | |
| После того, как масло впиталось, и застыл раствор, сделать разметку туалета и выровнять поверхность | |
| Под фундаментные блоки сделать на земле разметку, выкопать ямки глубиной около 30 см, утрамбовать грунт и засыпать щебень | |
| Установку каждого блока нужно проверить уровнем | |
| Вырезать гидроизоляцию на каждый блок, уложить на неё первую линию обвязки | |
| Подготовить доски для второй линии обвязки, покрыть их машинным маслом, уложить на первый слой и прикрутить к основанию | |
| Из бруса 40×60 мм установить на уголки вертикальные стойки | |
| На высоте 90 см закрепить уголки, на них уложить горизонтальный брус | |
| Смонтировать каркас туалета. Укосинами можно выровнять вертикальность стоек | |
| Перед настилом пола необходимо закрепить 2 дополнительных бруса к обвязке и покрыть их отработанным маслом. Затем на саморезы прикрутить доску толщиной 25 мм. Размер отверстия получился 24×36 см | |
| Обшить каркас туалета снаружи | |
| Для каркаса дверей понадобится брус 40×60 мм, для обшивки – доска толщиной 25 мм | |
| Покрыть все доски отработанным маслом | |
| Закрепить на крыше профнастил, закрыть фундамент доской, покрашенной отработанным маслом, и присыпать землёй |
Более подробно весь мастер-класс можно посмотреть на видео:
Watch this video on YouTube
Как своими руками установить вентканалы в дачном туалете: фото и чертежи
Для небольшого сооружения достаточно естественной вентиляции, это самый простой и дешёвый способ наладить дополнительный воздухообмен и для основной зоны, и для ямы.
Для ямы прекрасно подойдёт труба ПВХ диаметром от 11 см, которую следует закрепить вертикально.
Верхняя часть должна быть выше кровли на 0,2 м. Между нижней границей и отходами нужно оставить некоторое расстояние, чтобы возникла тяга. Если придерживаться данных рекомендаций, воздухообмен будет отличным для своевременного удаления метана из ёмкости.
Пластиковую трубу легко установить своими руками, на верхушке обязательно следует закрепить дефлектор, благодаря которому система работает намного эффективнее, кроме того, он предупредит замерзание воды на конструкции. Если подобрать модель с функцией флюгера, скорость потоков будет увеличена.
ФОТО: beton021.ruФОТО: electricschool.ruФОТО: west-deflektor.ru
Более подробно об установке вентиляции в дачном туалете можно посмотреть на видео:
Watch this video on YouTube
Устройство пудр-клозета
Если вы строите такой дачный туалет своими руками пошагово, инструкция будет достаточно лаконичной. Простота устройства объясняется, в том числе, тем, что для пудр-клозета не требуется сооружения ямы. Для компактных конструкций земляные работы вообще не нужны, а для стационарных может потребоваться углубление в земле, в которое будет помещаться накопительная емкость (ведро или бак). Устройство пудр-клозета сводится к установке под стульчаком емкости для сбора нечистот и снабжении туалета ящиком с засыпкой (торфом, опилками и пр.) и совком. Засыпать отходы следует после каждого посещения уборной.
Дачный пудр-клозет является наиболее простым в монтаже и обслуживании вариантом
Чертежи туалетной кабинки
Туалетная кабинка может иметь и другую конструкцию, но принцип постройки у всех идентичен. Вот несколько примеров.
Рис.40.
Рис.41.
Рис.42.
Рис.43.
Рис.44. Туалет изготовлен на основе деревянного каркаса и обшит вагонкой.
Рис.45. Самый простой — это деревянный уличный туалет.
Рис.46. Оригинальные туалеты для дачи фото.
Рис.47. Красивый туалет на даче фото. Туалет в форме бочки – очень оригинальная идея.
Рис.48. Как построить интересный туалет на даче? Сделать его необычной формы.
Рис.49. Как замаскировать туалет на даче фото. Обшить его блок хаусом и покрасить его в цвет коры дерева.
Рис.50. Туалет на даче из бревна.
Рис.51. Как покрасить туалет на даче. Оригинальная идея.
Рис.52. Туалет на даче из сайдинга.
Подготовка
- Сколотить площадку-пол и зашить досками, оставив отверстие. Доски покрыть антигрибковым составом в два слоя
- Установить готовую площадку на основание
- Сколотить переднюю и заднюю стенки, обшить их вагонкой.
Сборка конструкции
Согласно чертежу установить обе стенки
- Стенки крепятся к площадке-полу с помощью технологичных досок (потом их убрать)
- Выполнить обрешетку и покрыть гидроизоляционным составом
- Крыша сооружается из досок внахлест, фиксируется кровельными саморезами и покрывается коньком
- Установить дверной блок и обрамить проем наличником
Размеры дачного туалета типа шалаш не велики. Не забудьте установить под крышей фрамугу для проветривания, которая тоже будет треугольной формы.
Смотрим видео, сборка клозета для дачного участка:
Кровельным материалом для Шалаша может служить:
- Профнастил
- Шифер
- Оцинкованные гофролисты
- Иные материалы
Строить или покупать
Что выгоднее — купить готовую модель домика или построить по чертежу дачный туалет типа шалаш самостоятельно? Если вы сомневаетесь, что справитесь с монтажом септика самостоятельно — купите готовые изделия. Но смастерить домик из деревянной основы и обшить вагонкой может любой хозяин дачи.
Для работы будут нужны:
- Ножовка
- Рубанок
- Молоток
- Отвертка
- Саморезы
- Гвозди.
Имея элементарные умения в использовании данного инструментария, вы сможете возвести собственноручно домик для дачного туалета.
Примерный расход
- Две доски обрезных (6 и 4 метров)
- Доска половая — 4 штуки по 6 метров
- Вагонка длиной 3 метра — от двух до четырех пачек (в зависимости от внутренней обшивки)
- Пергамин — минимум 4 м
- Рубероид — 1,5 метра
- Песок — 2 ведра
- Гвозди оцинкованные — 2 кг
- Гвозди для вагонки (без шляпок) — 2 кг
- Гвозди для шифера — 20 шт
- Саморезы — пригоршня
- Шифер — 2 листа (8-волновой)
- Лист оцинкованного железа для конька — 1 шт
- Дверь с фурнитурой — 1 шт
- Антигрибковая жидкость
Советы мастеров
- Как сделать туалет на дачном участке? Чтобы ваш дачный туалет был устойчивым, и его не сдуло порывами ветра, надежно зафиксируйте низ строения.
- Устанавливайте конструкцию примерно на 20 сантиметров выше уровня грунта.
- Не проводите обшивку строения над ямой: сначала установите пол и сидение для туалета. После в стороне соорудите каркас, и перенесите его на готовое основание. В одиночку с этим не справиться — необходима помощь еще двоих человек.
- Контролируйте вертикаль и горизонталь уровнем на всех этапах монтажа.
- Дверной блок должен открываться наружу, иначе вход в строение будет затруднительным.
- Позаботьтесь о световом окне, чтобы днем не включать свет.
- Между деревянным каркасом и каменным основанием должен быть гидроизоляционный слой (рубероид).
- Если стены не обшиты виниловой вагонкой, их окрашивают краской.
- Не забывайте обрабатывать деревянное полотно антисептиком.
Как видите, построить самостоятельно хороший септик во дворе несложно. Вам необходимо лишь обладать навыками владения рабочими инструментами и составить подробный чертеж.
Делаем все весело и под музыку, так работают профессионалы:
https://youtube.com/watch?v=WPAz_o98i3E
Также следует рассчитать количество строительного материала, чтобы не ездить лишний раз в строймаркет. Самым оптимальным дизайном для дачной уборной будет домик в стиле шалаша. А выгребной сток лучше сделать из бетонных колец. Насчет дренажной системы вы решите сами. Но для чистого воздуха лучше подойдет абсолютная гидроизоляция, чем дренаж.





































